公布日:2023.04.04
申請日:2022.06.10
分類號:B01D21/02(2006.01)I;B01D21/24(2006.01)I;C02F9/00(2023.01)I;C02F103/28(2006.01)N
摘要
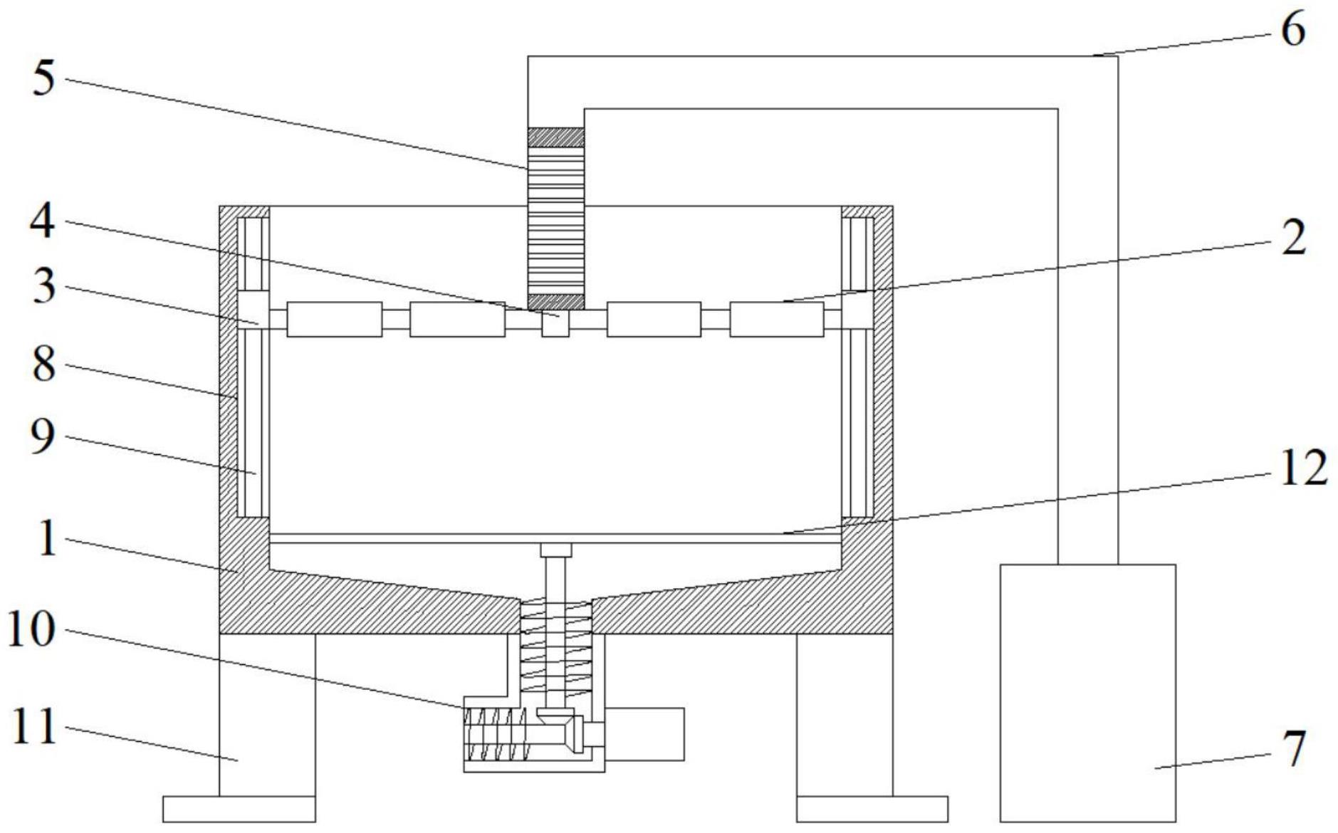
本發明公開了一種枕包原紙加工用造紙廢水處理沉淀池,所述沉淀池內部設置有浮板,所述浮板中心對接有抽液頭,所述抽液頭頂端對接有波紋管,所述波紋管另一端對接有抽液管,所述抽液管的另一端與外部設置的抽液泵抽液端相對接,所述沉淀池底部中心對接有排料管,所述排料管整體呈“L”型,所述排料管內部設置有第一絞龍和第二絞龍。本發明提供的一種枕包原紙加工用造紙廢水處理系統及其沉淀池沉淀操作時,浮板浮在廢水表面,波紋管可自由伸長,啟動抽液泵持續抽取上層清液,浮板會跟隨液面下降,待上層液面抽完后,啟動驅動電機帶動第一絞龍和第二絞龍轉動,進而將沉淀的物料排出,完成沉淀及其排出操作,操作更加方便固液分離處理更簡明。

權利要求書
1.一種枕包原紙加工用造紙廢水處理沉淀池,包括沉淀池(1),其特征在于,所述沉淀池(1)內部設置有浮板(2),所述浮板(2)中心對接有抽液頭(4),所述抽液頭(4)頂端對接有波紋管(5),所述波紋管(5)另一端對接有抽液管(6),所述抽液管(6)的另一端與外部設置的抽液泵(7)抽液端相對接,所述沉淀池(1)底部中心對接有排料管(10),所述排料管(10)整體呈“L”型,所述排料管(10)內部設置有第一絞龍(16)和第二絞龍(20)。
2.根據權利要求1所述的一種枕包原紙加工用造紙廢水處理沉淀池,其特征在于,所述浮板(2)包括四個浮箱(14),四個所述浮箱(14)之間通過三個固定架(13)相固定,外側兩個所述固定架(13)的兩端均固定連接有滑動套管(3),四個所述滑動套管(3)分別滑動套接于沉淀池(1)內側四個角端設置的導向柱(9)上。
3.根據權利要求2所述的一種枕包原紙加工用造紙廢水處理沉淀池,其特征在于,四個所述導向柱(9)分別卡接于所述沉淀池(1)內側四個角端設置的滑槽(8)內部。
4.根據權利要求1所述的一種枕包原紙加工用造紙廢水處理沉淀池,其特征在于,所述第一絞龍(16)底端對接有第一斜面齒輪(17),所述第二絞龍(20)右端設置有第二斜面齒輪(19),所述第一斜面齒輪(17)和所述第二斜面齒輪(19)相嚙合,所述第二絞龍(20)右側一端穿出所述排料管(10)外部并與外部設置的驅動電機(18)的輸出端相對接。
5.根據權利要求1所述的一種枕包原紙加工用造紙廢水處理沉淀池,其特征在于,所述第一絞龍(16)頂端轉動卡接有軸座(5),所述軸座(5)頂部固定連接于所述沉淀池(1)內下方設置的橫梁(12)底部,所述橫梁(12)的兩端分別固定于所述沉淀池(1)的池壁上。
6.根據權利要求2所述的一種枕包原紙加工用造紙廢水處理沉淀池,其特征在于,每個所述浮箱(14)的頂部均設置有注液孔(21)。
7.根據權利要求1所述的一種枕包原紙加工用造紙廢水處理系統及其沉淀池,其特征在于,所述沉淀池(1)底部的四個角端均設置有支腳(11)。
8.根據權利要求1所述的一種枕包原紙加工用造紙廢水處理系統,其特征在于,所述沉淀池(1)為本系統內特殊結構,系統內還包括廢水處理常見結構如(調節池、快慢反應池、厭氧塔、清水池、砂濾回用水池、濃縮池、調理池和壓泥機等)。
9.根據權利要求1所述的一種枕包原紙加工用造紙廢水處理沉淀池工作流程,其特征在于,廢水注入沉淀池(1)內部進行沉淀操作,期間浮板(2)浮在廢水表面,波紋管(5)可自由伸長,啟動抽液泵(7)持續抽取上層清液,浮板(2)會跟隨液面下降,待上層液面抽完后,啟動驅動電機(18)帶動第一絞龍(16)和第二絞龍(20)轉動,進而將沉淀的物料排出,完成沉淀及其排出操作。
發明內容
本發明的目的在于提供一種枕包原紙加工用造紙廢水處理沉淀池,以解決上述背景技術中提出的。
為實現上述目的,本發明提供如下技術方案:
一種枕包原紙加工用造紙廢水處理沉淀池,包括沉淀池,其特征在于,所述沉淀池內部設置有浮板,所述浮板中心對接有抽液頭,所述抽液頭頂端對接有波紋管,所述波紋管另一端對接有抽液管,所述抽液管的另一端與外部設置的抽液泵抽液端相對接,所述沉淀池底部中心對接有排料管,所述排料管整體呈“L”型,所述排料管內部設置有第一絞龍和第二絞龍。
作為本發明的進一步方案,所述浮板包括四個浮箱,四個所述浮箱之間通過三個固定架相固定,外側兩個所述固定架的兩端均固定連接有滑動套管,四個所述滑動套管分別滑動套接于沉淀池內側四個角端設置的導向柱上。
作為本發明的進一步方案,四個所述導向柱分別卡接于所述沉淀池內側四個角端設置的滑槽內部。
作為本發明的進一步方案,所述第一絞龍底端對接有第一斜面齒輪,所述第二絞龍右端設置有第二斜面齒輪,所述第一斜面齒輪和所述第二斜面齒輪相嚙合,所述第二絞龍右側一端穿出所述排料管外部并與外部設置的驅動電機的輸出端相對接。
作為本發明的進一步方案,所述第一絞龍頂端轉動卡接有軸座,所述軸座頂部固定連接于所述沉淀池內下方設置的橫梁底部,所述橫梁的兩端分別固定于所述沉淀池的池壁上。
作為本發明的進一步方案,每個所述浮箱的頂部均設置有注液孔。
作為本發明的進一步方案,所述沉淀池底部的四個角端均設置有支腳。
作為本發明的進一步方案,所述沉淀池為本系統內特殊結構,系統內還包括廢水處理常見結構如。
與現有技術相比,本發明的有益效果為:
(1)、本發明廢水注入沉淀池內部進行沉淀操作,期間浮板浮在廢水表面,波紋管可自由伸長,啟動抽液泵持續抽取上層清液,浮板會跟隨液面下降,待上層液面抽完后,啟動驅動電機帶動第一絞龍和第二絞龍轉動,進而將沉淀的物料排出,完成沉淀及其排出操作,操作更加方便固液分離處理更簡明。
(發明人:史君齊;駱華英;劉強利;伍駿實;江理勇;黃興全;龍順強)






