申請日2013.09.22
公開(公告)日2014.04.30
IPC分類號B01D25/12; C02F11/12
摘要
本實用新型公開了一種污泥預涂膜脫水設備,包括壓濾機,所述壓濾機濾板上的所有濾液流出口處各安裝一出液控制閥,所述壓濾機的進泥口上設有與進泥系統并聯的助濾劑懸濁液進液系統。本實用新型和現有設備相比,助濾劑薄膜對污泥具有吸附和阻隔的作用,可以防止和減少污泥顆粒進入濾布內部,降低污泥對濾布的污染程度,延長濾布的清洗周期;另一方面通過預涂助濾劑薄膜可以降低污泥脫水比阻,保證良好的出水通道,提高污泥的脫水能力,較現有工藝可降低脫水泥餅的含水率3~8個百分點。
權利要求書
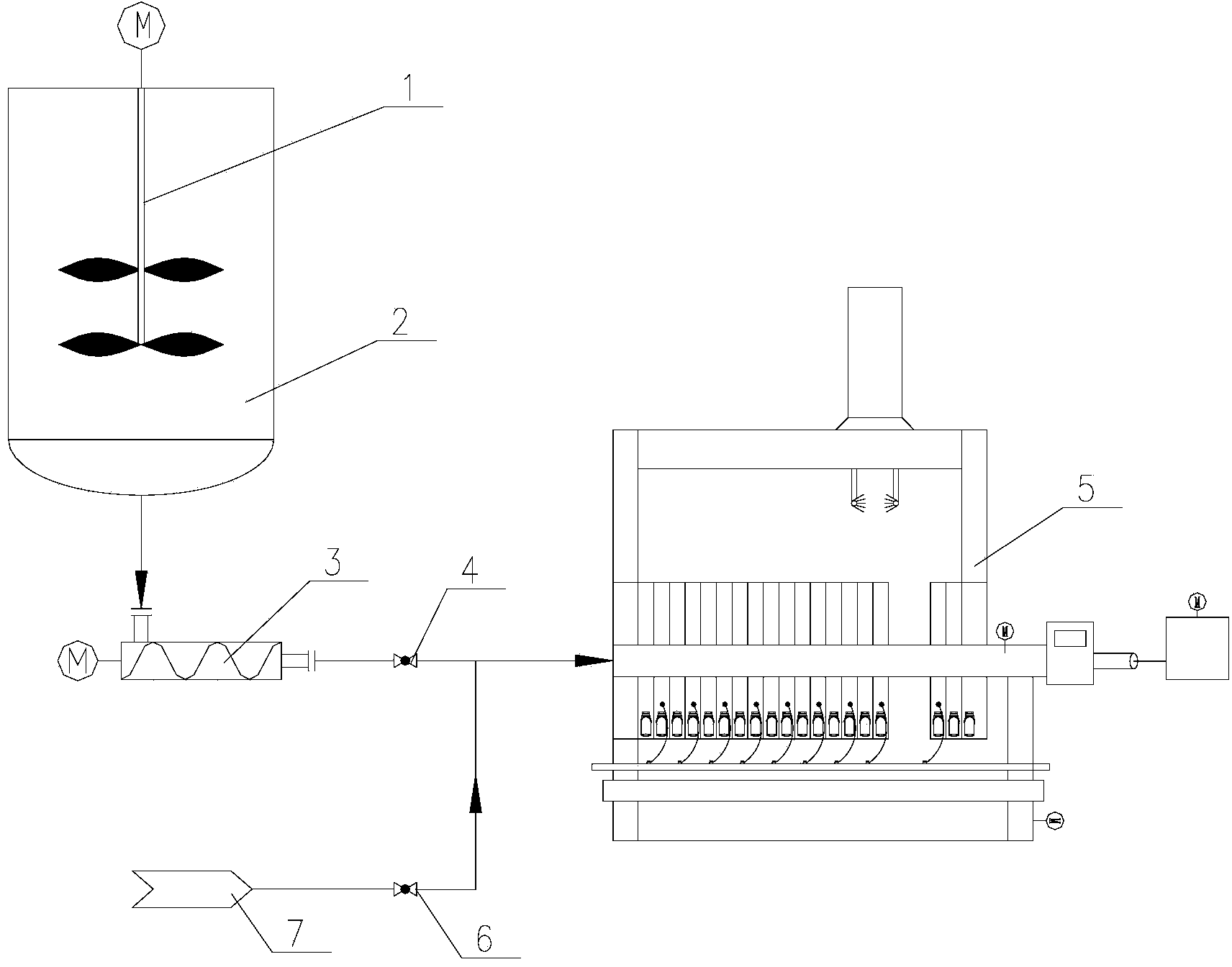
1.一種污泥預涂膜脫水設備,包括壓濾機,其特征在于,所述壓濾機濾板上的所有 濾液流出口處各安裝一出液控制閥,所述壓濾機的進泥口上設有與進泥系統并聯的助濾 劑懸濁液進液系統。
2.根據權利要求1所述污泥預涂膜脫水設備,其特征在于,所述助濾劑懸濁液進液 系統包括與所述壓濾機的進泥口相連的進液管、與所述進液管相連的助濾劑進料泵和與 所述進料泵通過管路相連的助濾劑配制罐,所述助濾劑配制罐內設有攪拌器,所述進液 管上設有進液控制閥。
3.根據權利要求1所述污泥預涂膜脫水設備,其特征在于,所述壓濾機為廂式隔膜 壓濾機。
說明書
一種污泥預涂膜脫水設備
技術領域
本實用新型屬于污水、污泥處理領域,特別涉及一種污泥預涂膜脫水設備。
背景技術
污泥處理的核心問題是水分的脫除,即污泥的減量化。目前,污水處理廠大多采用 聚丙烯酰胺調質+帶式或離心式脫水機脫水的污泥脫水工藝,污泥含水率在80%~85%。
環境保護部辦公廳2010年11月26日發布的“關于加強城鎮污水處理廠污泥污染防 治工作的通知”(環辦[2010]157號)中規定的“污水處理廠以貯存(即不處理處置)為 目的將污泥運出廠界的,必須將污泥脫水至含水率50%以下”。住建部印發的《城鎮污 水處理廠污泥處置混合填埋用泥質》(GB/T23485-2009)要求,污泥用作混合填埋時, 含水率不得高于60%,用作垃圾填埋場覆蓋土添加料時,污泥含水率不得高于45%。為 了滿足國家對污泥低含水率的更高要求,國內污水處理廠逐漸開始實施污泥深度脫水工 程,主要采用污泥化學調質+廂式隔膜壓濾機脫水的工藝,深度脫水后污泥含水率在 50%~60%。隨著污泥脫水系統的運行,污泥會進入到濾布內部堵塞濾布孔道,使得污泥 中的水分無法暢通流出,因此,必須要經常對濾布進行清洗。
發明內容
本實用新型為解決公知技術中存在的技術問題而提供一種能夠延長壓濾機濾布清洗 周期的污泥預涂膜脫水設備。
本實用新型為解決公知技術中存在的技術問題所采取的技術方案是:一種污泥預涂 膜脫水設備,包括壓濾機,所述壓濾機濾板上的所有濾液流出口處各安裝一出液控制閥, 所述壓濾機的進泥口上設有與進泥系統并聯的助濾劑懸濁液進液系統。
所述助濾劑懸濁液進液系統包括與所述壓濾機的進泥口相連的進液管、與所述進液 管相連的助濾劑進料泵和與所述進料泵通過管路相連的助濾劑配制罐,所述助濾劑配制 罐內設有攪拌器,所述進液管上設有進液控制閥。
所述壓濾機為廂式隔膜壓濾機。
本實用新型具有的優點和積極效果是:在采用壓濾機進行污泥脫水前,在壓濾機的 濾布表面上形成一層助濾劑薄膜,和現有設備相比,助濾劑薄膜對污泥具有吸附和阻隔 的作用,可以防止和減少污泥顆粒進入濾布內部,降低污泥對濾布的污染程度,延長濾 布的清洗周期;另一方面通過預涂助濾劑薄膜可以降低污泥脫水比阻,保證良好的出水 通道,提高污泥的脫水能力,較現有工藝可降低脫水泥餅的含水率3~8個百分點。







