公布日:2024.05.24
申請日:2024.03.19
分類號:C02F3/30(2023.01)I;C02F7/00(2006.01)I
摘要
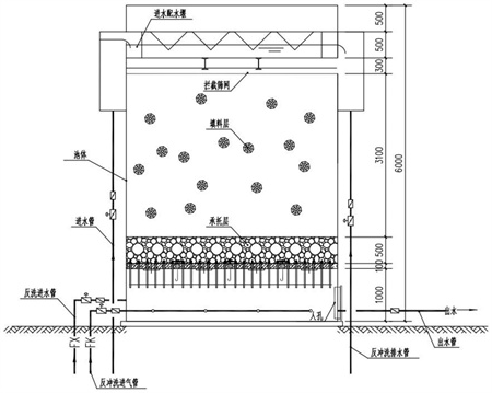
本發明提供了一種曝氣生物濾池及污水處理方法,屬于污水處理技術領域。本發明提供了一種曝氣生物濾池,包括:池體和位于所述池體內、由上到下設置的配水堰、攔截篩網、MBBR填料層、承托層、濾頭、濾板和進出水管,所述MBBR填料層的濾料比表面積≥750m2/m3,密度為0.97~1.03g/cm3。本發明中,濾料采用MBBR輕質濾料,比重小,有彈性不易磨損,壽命長,比表面積大,表面粗糙,生物量高且生物相更豐富,抗沖擊負荷能力強,進而能夠提高對污水的處理效果。

權利要求書
1.一種曝氣生物濾池,其特征在于,包括:池體和位于所述池體內、由上到下設置的配水堰、攔截篩網、MBBR填料層、承托層、濾頭、濾板和進出水管,所述MBBR填料層的濾料比表面積≥750m2/m3,密度為0.97~1.03g/cm3。
2.根據權利要求1所述的曝氣生物濾池,其特征在于,所述MBBR填料層的厚度為1.8~2.4m。
3.根據權利要求1或2所述的曝氣生物濾池,其特征在于,所述MBBR填料層的濾料規格為直徑25mm×厚度10mm。
4.根據權利要求1所述的曝氣生物濾池,其特征在于,所述承托層為級配礫石層,所述級配礫石層的厚度為500mm,布置方案為自上而下分別為12~20mm、6~12mm、3~6mm、6~12mm和12~20mm的礫石各100mm。
5.根據權利要求1所述的曝氣生物濾池,其特征在于,所述曝氣生物濾池還包括反洗系統,所述反洗系統包括位于所述池體底部的反洗進水管、反沖洗進氣管和反沖洗排水管。
6.一種污水處理方法,利用權利要求1~5任一項所述的曝氣生物濾池,其特征在于,所述污水為下向流運行,包括以下步驟:將所述污水通入所述配水堰,所述污水依次流經攔截篩網、MBBR填料層、承托層、濾頭、濾板和進出水管。
7.一種污水處理方法,利用權利要求1~5任一項所述的曝氣生物濾池,其特征在于,所述污水為上向流運行,包括以下步驟:將所述污水通入所述進出水管,所述污水依次流經濾板、濾頭、承托層、MBBR填料層、攔截篩網和配水堰。
8.根據權利要求6或7所述的污水處理方法,其特征在于,所述污水流經所述MBBR填料層的濾速為4.5~6.5m/h,有效停留時間為0.5~0.8h。
9.根據權利要求6或7所述的污水處理方法,其特征在于,還包括進行反洗,所述反洗包括依次進行氣反沖洗、氣水聯合沖洗和水反沖洗。
10.根據權利要求9所述的污水處理方法,其特征在于,所述水反沖洗的強度為15m3/(m2·h),所述氣反沖洗的強度為60m3/(m2·h)。
發明內容
有鑒于此,本發明的目的在于提供一種曝氣生物濾池及污水處理方法。本發明提供的曝氣生物濾池的污染物處理效果好。
為了實現上述發明目的,本發明提供以下技術方案:
本發明提供了一種曝氣生物濾池,包括:池體和位于所述池體內、由上到下設置的配水堰、攔截篩網、MBBR填料層、承托層、濾頭、濾板和進出水管,所述MBBR填料層的濾料比表面積≥750m2/m3,密度為0.97~1.03g/cm3。
優選地,所述MBBR填料層的厚度為1.8~2.4m。
優選地,所述MBBR填料層的濾料規格為直徑25mm×厚度10mm。
優選地,所述承托層為級配礫石層,所述級配礫石層的厚度為500mm,布置方案為自上而下分別為12~20mm、6~12mm、3~6mm、6~12mm和12~20mm的礫石各100mm。
優選地,所述曝氣生物濾池還包括反洗系統,所述反洗系統包括位于所述池體底部的反洗進水管、反沖洗進氣管和反沖洗排水管。
本發明還提供了一種污水處理方法,利用上述技術方案所述的曝氣生物濾池,所述污水為下向流運行,包括以下步驟:
將所述污水通入所述配水堰,所述污水依次流經攔截篩網、MBBR填料層、承托層、濾頭、濾板和進出水管。
本發明還提供了一種污水處理方法,利用上述技術方案所述的曝氣生物濾池,所述污水為上向流運行,包括以下步驟:
將所述污水通入所述進出水管,所述污水依次流經濾板、濾頭、承托層、MBBR填料層、攔截篩網和配水堰。
優選地,所述污水流經所述MBBR填料層的濾速為4.5~6.5m/h,有效停留時間為0.5~0.8h。
優選地,還包括進行反洗,所述反洗包括依次進行氣反沖洗、氣水聯合沖洗和水反沖洗。
優選地,所述水反沖洗的強度為15m3/(m2·h),所述氣反沖洗的強度為60m3/(m2·h)。
本發明提供了一種曝氣生物濾池,包括:池體和位于所述池體內、由上到下設置的配水堰、攔截篩網、MBBR填料層、承托層、濾頭、濾板和進出水管,所述MBBR填料層的濾料比表面積≥750m2/m3,密度為0.97~1.03g/cm3。
與現有技術相比,本發明的有益效果如下:
本發明中,濾料采用MBBR輕質濾料,比重小,有彈性不易磨損,壽命長,比表面積大,表面粗糙,生物量高且生物相更豐富,抗沖擊負荷能力強,進而能夠提高對污水的處理效果。
本發明還提供了污水處理方法,可通過調整運行方式,在碳氧化/硝化和反硝化之間靈活切換,反洗強度小,設備能耗低。
實施例的數據表明,本發明的曝氣生物濾池對TN去除負荷為0.2~1.5kgNO3-N/(m3填料·d),COD去除負荷最高為4.0kgCOD/(m3填料·d),氨氮去除負荷最高為1.1kgNH3-N/(m3填料·d)。
(發明人:陳雨;王肖;周琴;王嫣;曹小娟)






