公布日:2023.11.24
申請日:2023.10.23
分類號:C02F11/10(2006.01)I;B01F31/445(2022.01)I;B01F27/922(2022.01)I
摘要
本發明公開了一種生物污泥處理用脫水熱解氣化裝置,涉及生物污泥處理設備技術領域,包括脫水箱、熱解氣化箱、輸送機構、壓板機構、加熱腔、熱解氣化腔、攪拌機構。本發明中可有效加強對生物污泥的擠壓接觸面積,加強對生物污泥的脫水處理效果,插桿對生物污泥進行插孔處理,有效加強余熱利用殼對生物污泥的加熱脫水處理效果;可對熱解氣化腔內部生物污泥的內外同時加熱處理,可有效加強對生物污泥的熱解氣化處理效果;螺旋輸送葉片對生物污泥進行螺旋圓周攪拌、向上輸送,再配合擺動桿對生物污泥進行擺動式圓周攪拌處理,可有效加強對熱解氣化腔內部生物污泥的混合均勻性和穩定性,進而加強對生物污泥的熱解氣化處理效果。

權利要求書
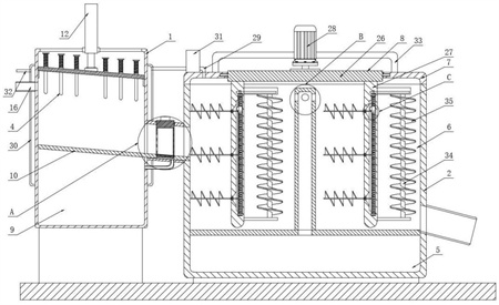
1.一種生物污泥處理用脫水熱解氣化裝置,包括脫水箱(1)和熱解氣化箱(2),其特征在于:所述脫水箱(1)和熱解氣化箱(2)之間設有輸送機構(3),所述脫水箱(1)頂部設有活動連接的壓板機構(4),所述熱解氣化箱(2)內部設有加熱腔(5)和熱解氣化腔(6),所述加熱腔(5)設于熱解氣化腔(6)下方,所述熱解氣化箱(2)頂部設有箱蓋(7),所述箱蓋(7)底部設有轉動連接的攪拌機構(8);所述脫水箱(1)底部設有儲液腔(9),所述脫水箱(1)于儲液腔(9)頂部傾斜設有支撐板(10),所述壓板機構(4)包括壓板(11),所述壓板(11)頂部中心設有第一伺服電缸(12),所述壓板(11)頂部于第一伺服電缸(12)外側設有若干個活動連接的插桿(13),所述插桿(13)頂部設有限位板(14),所述插桿(13)貫穿壓板(11)延伸至壓板(11)下方,所述插桿(13)外壁于壓板(11)上方套設有彈簧(15),所述彈簧(15)一端與壓板(11)固定連接,所述彈簧(15)另一端與限位板(14)固定連接;所述脫水箱(1)外壁一側頂部設有進料口(16),所述脫水箱(1)外壁另一側于支撐板(10)頂部設有出料口(17),所述輸送機構(3)包括輸送管道(18),所述輸送管道(18)頂部設有活動連接的隔離筒(19),所述支撐板(10)延伸至輸送管道(18)內部于隔離筒(19)下方設有過濾網(20),所述隔離筒(19)外壁靠近出料口(17)一側設有若干個排水孔(21),所述輸送管道(18)底部于過濾網(20)下方設有排水管(22),所述排水管(22)與儲液腔(9)外壁頂部連接,所述輸送管道(18)外壁設有第二伺服電缸(23),所述第二伺服電缸(23)一端與隔離筒(19)頂部固定連接;所述熱解氣化腔(6)內部中心豎直設有導氣柱(24),所述導氣柱(24)底部與加熱腔(5)貫通,所述導氣柱(24)頂部設有若干個排氣孔(25),所述攪拌機構(8)包括轉盤(26),所述轉盤(26)底部豎直設有若干個攪拌桿(27),所述轉盤(26)與箱蓋(7)轉動連接,所述箱蓋(7)頂部于轉盤(26)上方設有伺服電機(28),所述伺服電機(28)輸出軸與轉盤(26)頂部中心固定連接;所述攪拌桿(27)外壁一側水平設有第一輔助板和第二輔助板,所述攪拌桿(27)外壁另一側設有若干個活動連接的擺動桿(41),所述第一輔助板和第二輔助板之間豎直轉動設有第一支撐軸(34),所述第一支撐軸(34)外壁設有螺旋輸送葉片(35),所述攪拌桿(27)內部豎直設有轉動連接的雙向絲桿(36),所述雙向絲桿(36)外壁匹配套設有活動連接的絲桿螺母(37),所述第一支撐軸(34)外壁于第一輔助板內部設有第一鏈輪(38),所述第一鏈輪(38)外壁匹配套設有鏈條(39),所述雙向絲桿(36)外壁一端套設有與鏈條(39)相匹配的第二鏈輪(40),所述擺動桿(41)與攪拌桿(27)轉動連接,所述擺動桿(41)一端延伸至攪拌桿(27)內部,所述絲桿螺母(37)外壁靠近擺動桿(41)一側設有導引球(42);所述擺動桿(41)外壁設有支撐球(43),所述支撐球(43)與攪拌桿(27)轉動連接,所述支撐球(43)外壁兩側對稱設有第二支撐軸(44),所述第二支撐軸(44)外壁套設有扭簧(45),所述扭簧(45)與攪拌桿(27)內壁固定連接,所述第二支撐軸(44)與攪拌桿(27)內壁轉動連接,所述第二支撐軸(44)與擺動桿(41)相互垂直,且所述第二支撐軸(44)與攪拌桿(27)相互垂直;所述擺動桿(41)外壁頂部設有若干個第一撥片(49),所述擺動桿(41)外壁底部設有若干個第二撥片(50),所述第一撥片(49)和第二撥片(50)交叉對稱設置;相鄰兩個所述攪拌桿(27)外壁的擺動桿(41)設置位置相反,一個所述攪拌桿(27)外壁的擺動桿(41)設于靠近導氣柱(24)一側,其相鄰所述攪拌桿(27)外壁的擺動桿(41)設于遠離導氣柱(24)一側。
2.根據權利要求1所述的一種生物污泥處理用脫水熱解氣化裝置,其特征在于:所述熱解氣化箱(2)外壁于輸送管道(18)連接處設有輸料口,所述熱解氣化箱(2)外壁一側底部設有排料管。
3.根據權利要求1所述的一種生物污泥處理用脫水熱解氣化裝置,其特征在于:所述箱蓋(7)底部設有輸氣管(29),所述脫水箱(1)外壁設有余熱利用殼(30),所述輸氣管(29)通過過濾器(31)與余熱利用殼(30)連接,所述余熱利用殼(30)外壁一側頂部設有排氣口(32)。
4.根據權利要求1所述的一種生物污泥處理用脫水熱解氣化裝置,其特征在于:所述箱蓋(7)頂部于轉盤(26)外側設有支撐架(33),所述伺服電機(28)與支撐架(33)固定連接。
5.根據權利要求1所述的一種生物污泥處理用脫水熱解氣化裝置,其特征在于:所述攪拌桿(27)內部設有與雙向絲桿(36)相匹配的安裝腔(46),所述攪拌桿(27)內壁豎直設有與導引球(42)相匹配的滑槽(47),所述攪拌桿(27)內部設有與擺動桿(41)相匹配的擺動腔(48),所述擺動腔(48)通過滑槽(47)與安裝腔(46)貫通。
6.根據權利要求5所述的一種生物污泥處理用脫水熱解氣化裝置,其特征在于:所述擺動桿(41)與雙向絲桿(36)的間距小于導引球(42)外徑的四分之一,所述擺動桿(41)延伸至滑槽(47)內側。
發明內容
本發明的目的在于提供一種生物污泥處理用脫水熱解氣化裝置,以解決上述背景技術中提出的問題。
為了解決上述技術問題,本發明提供如下技術方案:一種生物污泥處理用脫水熱解氣化裝置,包括脫水箱和熱解氣化箱,所述脫水箱和熱解氣化箱之間設有輸送機構,所述脫水箱頂部設有活動連接的壓板機構,所述熱解氣化箱內部設有加熱腔和熱解氣化腔,所述加熱腔設于熱解氣化腔下方,所述熱解氣化箱頂部設有箱蓋,所述箱蓋底部設有轉動連接的攪拌機構。
進一步的,所述脫水箱底部設有儲液腔,所述脫水箱于儲液腔頂部傾斜設有支撐板,所述壓板機構包括壓板,所述壓板頂部中心設有第一伺服電缸,所述壓板頂部于第一伺服電缸外側設有若干個活動連接的插桿,所述插桿頂部設有限位板,所述插桿貫穿壓板延伸至壓板下方,所述插桿外壁于壓板上方套設有彈簧,所述彈簧一端與壓板固定連接,所述彈簧另一端與限位板固定連接;所述脫水箱外壁一側頂部設有進料口,所述脫水箱外壁另一側于支撐板頂部設有出料口,所述輸送機構包括輸送管道,所述輸送管道頂部設有活動連接的隔離筒,所述支撐板延伸至輸送管道內部于隔離筒下方設有過濾網,所述隔離筒外壁靠近出料口一側設有若干個排水孔,所述輸送管道底部于過濾網下方設有排水管,所述排水管與儲液腔外壁頂部連接,所述輸送管道外壁設有第二伺服電缸,所述第二伺服電缸一端與隔離筒頂部固定連接;所述熱解氣化腔內部中心豎直設有導氣柱,所述導氣柱底部與加熱腔貫通,所述導氣柱頂部設有若干個排氣孔,所述攪拌機構包括轉盤,所述轉盤底部豎直設有若干個攪拌桿,所述轉盤與箱蓋轉動連接,所述箱蓋頂部于轉盤上方設有伺服電機,所述伺服電機輸出軸與轉盤頂部中心固定連接。
進一步的,所述熱解氣化箱外壁于輸送管道連接處設有輸料口,所述熱解氣化箱外壁一側底部設有排料管。
進一步的,所述箱蓋底部設有輸氣管,所述脫水箱外壁設有余熱利用殼,所述輸氣管通過過濾器與余熱利用殼連接,所述余熱利用殼外壁一側頂部設有排氣口。
進一步的,所述箱蓋頂部于轉盤外側設有支撐架,所述伺服電機與支撐架固定連接。
進一步的,所述攪拌桿外壁一側水平設有第一輔助板和第二輔助板,所述攪拌桿外壁另一側設有若干個活動連接的擺動桿,所述第一輔助板和第二輔助板之間豎直轉動設有第一支撐軸,所述第一支撐軸外壁設有螺旋輸送葉片,所述攪拌桿內部豎直設有轉動連接的雙向絲桿,所述雙向絲桿外壁匹配套設有活動連接的絲桿螺母,所述第一支撐軸外壁于第一輔助板內部設有第一鏈輪,所述第一鏈輪外壁匹配套設有鏈條,所述雙向絲桿外壁一端套設有與鏈條相匹配的第二鏈輪,所述擺動桿與攪拌桿轉動連接,所述擺動桿一端延伸至攪拌桿內部,所述絲桿螺母外壁靠近擺動桿一側設有導引球;所述擺動桿外壁設有支撐球,所述支撐球與攪拌桿轉動連接,所述支撐球外壁兩側對稱設有第二支撐軸,所述第二支撐軸外壁套設有扭簧,所述扭簧與攪拌桿內壁固定連接,所述第二支撐軸與攪拌桿內壁轉動連接,所述第二支撐軸與擺動桿相互垂直,且所述第二支撐軸與攪拌桿相互垂直。
進一步的,所述攪拌桿內部設有與雙向絲桿相匹配的安裝腔,所述攪拌桿內壁豎直設有與導引球相匹配的滑槽,所述攪拌桿內部設有與擺動桿相匹配的擺動腔,所述擺動腔通過滑槽與安裝腔貫通。
進一步的,所述擺動桿與雙向絲桿的間距小于導引球外徑的四分之一,所述擺動桿延伸至滑槽內側。
進一步的,所述擺動桿外壁頂部設有若干個第一撥片,所述擺動桿外壁底部設有若干個第二撥片,所述第一撥片和第二撥片交叉對稱設置。
進一步的,相鄰兩個所述攪拌桿外壁的擺動桿設置位置相反,一個所述攪拌桿外壁的擺動桿設于靠近導氣柱一側,其相鄰所述攪拌桿外壁的擺動桿設于遠離導氣柱一側。
與現有技術相比,本發明所達到的有益效果是:
本發明通過設置脫水箱、熱解氣化箱、輸送機構、壓板機構、加熱腔、熱解氣化腔、攪拌機構,壓板機構對支撐板上的生物污泥進行下壓處理,生物污泥在壓力作用下實現固液分離,將污泥中的水分擠壓處理,第一伺服電缸將壓板向下壓,壓板沿著脫水箱向下移,插桿隨著壓板向下運動,隨著壓板的逐漸下移,插桿不斷向下,插桿先插入生物污泥,隨著壓板的再次下壓,壓板將生物污泥繼續向下壓,插桿也隨著壓板繼續下移插入生物污泥內部,當插桿底部和支撐板接觸或者遇到硬質生物污泥無法繼續下移時,插桿頂部將限位板向上頂,彈簧拉伸;壓板將生物污泥下壓時,可有效將生物污泥中的水分擠壓排出;插桿插入生物污泥的過程中,可有效加強對生物污泥的擠壓接觸面積,加強對生物污泥的脫水處理效果,同時插桿對生物污泥進行插孔處理,可有效加強余熱利用殼對生物污泥的加熱脫水處理效果;壓板對生物污泥擠壓處理之后,調節第一伺服電缸帶動壓板向上移,開始壓板向上移時,插桿在彈簧回彈作用下位置不變,壓板和插桿發生相對位移,在壓板和生物污泥分離時,插桿仍然插入生物污泥中,使得生物污泥的脫水效果更佳;第二伺服電缸將隔離筒下壓,隔離筒將輸送管道進行封閉處理,隔離筒對脫水箱中的生物污泥進行隔離處理,脫水箱生物污泥水液穿過隔離筒的排水孔進入隔離筒內側,然后從隔離筒中向下落,水液穿過過濾網進入排水管,再從排水管排到儲液腔內部,隔離筒遠離排水孔一側處于封閉狀態,可有效避免水液流到熱解氣化箱內部;當生物污泥脫水處理結束后,調節第二伺服電缸進行升降工作,第二伺服電缸帶動隔離筒進行升降工作,隔離筒升降過程中對輸送管道進行間歇式封閉處理,當隔離筒向上移時,生物污泥沿著支撐板向下滑,隔離筒向下移時,隔離筒將支撐板上的生物污泥進行切斷隔離處理,隔離筒再次上提時切斷的生物污泥繼續沿著支撐板向下移進入到熱解氣化箱內部;熱量直接傳遞到熱解氣化腔內部,同時加熱腔內部的熱量可通過導氣柱的排氣孔將熱氣從加熱腔傳導直接進入熱解氣化腔內部,可實現對熱解氣化腔內部生物污泥的內外同時加熱處理,可有效加強對生物污泥的熱解氣化處理效果;伺服電機帶動轉盤進行旋轉運動,轉盤帶動攪拌桿在熱解氣化箱內部對生物污泥進行攪拌處理,可有效加強生物污泥在熱解氣化箱內部分布均勻性和混合均勻性,進一步加強對生物污泥的熱解氣化處理效果。
本發明通過設置擺動桿、第一支撐軸、螺旋輸送葉片、雙向絲桿、絲桿螺母、導引球、支撐球、第二支撐軸和扭簧,攪拌桿隨著轉盤進行旋轉運動,攪拌桿在熱解氣化腔內部進行圓周運動,第一輔助板、第二輔助板、第一支撐軸和擺動桿隨著攪拌桿進行圓周運動,第一輔助板和第二輔助板對第一支撐軸進行旋轉支撐,螺旋輸送葉片隨著第一支撐軸進行圓周運動,同時螺旋輸送葉片與生物污泥接觸攪拌,生物污泥對螺旋輸送葉片接觸阻隔,生物污泥和螺旋輸送葉片相互作用,使得螺旋輸送葉片發生自轉運動,螺旋輸送葉片在自轉運動過程中會帶動生物污泥進行螺旋輸送處理,實現對生物污泥的螺旋升降輸送,螺旋輸送葉片對生物污泥進行螺旋圓周攪拌的同時進行螺旋向上輸送的工作,再配合擺動桿對生物污泥進行擺動式圓周攪拌處理,可有效加強對熱解氣化腔內部生物污泥的混合均勻性和穩定性,進而加強對生物污泥的熱解氣化處理效果;在螺旋輸送葉片旋轉運動過程中,第一支撐軸隨著螺旋輸送葉片進行旋轉運動,第一支撐軸帶動第一鏈輪進行旋轉運動,第一鏈輪通過鏈條帶動第二鏈輪進行旋轉運動,第二鏈輪帶動雙向絲桿進行旋轉運動,雙向絲桿旋轉運動過程中帶動絲桿螺母沿著雙向絲桿進行往復升降運動,絲桿螺母往復升降運動過程中帶動導引球進行升降往復運動;當導引球向下運動過程中,導引球運動到和擺動桿接觸位置,隨著導引球繼續下移,導引球將擺動桿向下壓,擺動桿位于攪拌桿內側的部分向下擺動,支撐球對擺動桿進行擺動支撐,第二支撐軸對支撐球進行擺動支撐,扭簧對第二支撐軸和攪拌桿之間提供扭轉支撐力,擺動桿位于攪拌桿外部的部分向上擺動,隨著導引球的繼續下移,導引球和擺動桿分離,擺動桿失去導引球的擠壓力,在扭簧作用下,帶動支撐球進行擺動復位,進而實現對擺動桿的擺動復位,實現擺動桿的向上擺動和向下擺動的工作,可進一步加強擺動桿對生物污泥的攪拌處理效果;導引球向上運動時,同理實現擺動桿的向下擺動和向上擺動的工作,可進一步加強擺動桿對生物污泥的攪拌處理效果。
(發明人:馬吉松;楊威;龔明皓;趙啟豪;鈕志遠)






