公布日:2024.05.24
申請日:2023.05.31
分類號:C02F1/52(2023.01)I;C02F1/24(2023.01)I;C02F11/125(2019.01)I
摘要
本發明公開了電脫鹽污水處理裝置及方法,包括高效管槽混凝器,所述高效管槽混凝器由一個管道混凝器和一個絮凝槽依次串聯構成;所述管道混凝器由倒U形管和第一攪拌槳構成,倒U形管上設置有入口管路,且入口管路的一端設置有入料口,所述第一攪拌槳置于倒U形管的入口管路內,倒U形管上安裝有攪拌電機,且攪拌電機的輸出軸和第一攪拌槳連接;本發明的有益效果是:離心氣浮機產生的浮渣由浮渣出口通過管道c進入浮渣箱,實現浮渣的集中處理,污泥置于螺旋輸送機上進行輸送處理,從而可對污泥進行集中處理,提高處理的效率;通過增設的支撐座,以及在支撐座上增設的抵接部件和支撐部件,有助于進一步增加對管路B的支撐。

權利要求書
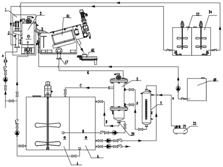
1.電脫鹽污水處理裝置,其特征在于:包括高效管槽混凝器(1),所述高效管槽混凝器(1)由一個管道混凝器(2)和一個絮凝槽(3)依次串聯構成;所述管道混凝器(2)由倒U形管和第一攪拌槳(8)構成,倒U形管上設置有入口管路(10),且入口管路(10)的一端設置有入料口(9),所述第一攪拌槳(8)置于倒U形管的入口管路(10)內,倒U形管上安裝有攪拌電機(11),且攪拌電機(11)的輸出軸和第一攪拌槳(8)連接;所述絮凝槽(3)的頂部安裝有變頻減速電機(13),且變頻減速電機(13)的輸出軸連接有置于絮凝槽(3)內部的第二攪拌槳,所述絮凝槽(3)的頂部設置有排氣口(14)、上部設置有浮渣液出口(15)、底部設置有排污口(16)、下部設置有和管道混凝器(2)的出料口管路連接的進料口(17);所述管道混凝器(2)的出口和入口依次連接,前端的管道混凝器(2)的進料口與原料液a管線連通、后端的管道混凝器(2)物料出口與絮凝槽(3)下部的進料口(17)連接;所述管道混凝器(2)和絮凝槽(3)的入口處分別設有加藥口b、加藥口d;A加藥箱(33),所述A加藥箱(33)和加藥口b連接;B加藥箱(34),所述B加藥箱(34)和加藥口d連接;串螺污泥脫水機(44),所述浮渣液出口(15)通過管路B與串螺污泥脫水機(44)連接,且串螺污泥脫水機(44)的下部設置有濾液出口(47),所述串螺污泥脫水機(44)上設置有污泥出口(22);離心氣浮機(5),所述濾液出口(47)通過管路G與離心氣浮機(5)上部的濾液入口連接,所述離心氣浮機(5)上設置有浮渣出口(28)和清水出口(29);空壓機(23),所述空壓機(23)通過管道e連接有溶氣罐(7),且溶氣罐(7)產生的溶氣水通過管道F和離心氣浮機(5)連接;螺旋輸送機(46),所述污泥出口(22)鏈接螺旋輸送機(46);浮渣箱(4),所述浮渣出口(28)通過管道c和浮渣箱(4)連接;清水箱(6),所述清水出口(29)通過管道D和清水箱(6)連接。
2.根據權利要求1所述的電脫鹽污水處理裝置,其特征在于:還包括底座(12),所述絮凝槽(3)安裝于底座(12)的頂部。
3.根據權利要求1所述的電脫鹽污水處理裝置,其特征在于:所述絮凝槽(3)的側表面安裝有固定盤(50),且固定盤(50)的側表面設置有支撐桿(51)。
4.根據權利要求3所述的電脫鹽污水處理裝置,其特征在于:所述支撐桿(51)的頂部安裝有支撐座(52),且支撐座(52)上設置有抵接部件和支撐部件。
5.根據權利要求4所述的電脫鹽污水處理裝置,其特征在于:所述抵接部件包括彈性塊(521),所述彈性塊(521)對稱設置于支撐座(52)的內側面,且彈性塊(521)的一端連接有限定塊(53)。
6.根據權利要求4所述的電脫鹽污水處理裝置,其特征在于:所述支撐部件包括水平座(54),所述水平座(54)安裝于支撐座(52)的內底部中間位置。
7.根據權利要求6所述的電脫鹽污水處理裝置,其特征在于:所述水平座(54)的底部設置有凸起(541),所述支撐座(52)的內底部開設有凹槽(522),且凹槽(522)的內側面設置有對稱分布的擋塊(55),所述凸起(541)插入凹槽(522)的內部,并抵接在擋塊(55)上。
8.電脫鹽污水處理方法,包括如權利要求1-7任一項所述裝置中的入口管路(10),其特征在于:所述方法如下:入口管路(10)內第一攪拌槳(8)的高速運轉形成強勁的紊流,聚集了充分的能量,有效破壞離子彼此間的排斥力的同時與A加藥箱(33)內的A藥劑和B加藥箱(34)內的B藥劑快速混合,增強離子間反復碰撞并快速凝集;浮渣液進入串螺污泥脫水機(44),污泥置于螺旋輸送機(46)上進行輸送處理,濾液置于離心氣浮機(5)內;空壓機(23)壓縮空氣通過管道e進入溶氣罐(7),此時產生的溶氣水通過管道F進入離心氣浮機(5),離心氣浮機(5)產生的浮渣由浮渣出口(28)通過管道c進入浮渣箱(4),實現浮渣的集中處理,產生的清水由清水出口(29)通過管道D進入清水箱(6)達標后外排。
發明內容
本發明的目的在于提供電脫鹽污水處理裝置及方法,便于對浮渣以及污泥進行集中處理,提高處理的效率。
為實現上述目的,本發明提供如下技術方案:電脫鹽污水處理裝置,包括
高效管槽混凝器,所述高效管槽混凝器由一個管道混凝器和一個絮凝槽依次串聯構成;所述管道混凝器由倒U形管和第一攪拌槳構成,倒U形管上設置有入口管路,且入口管路的一端設置有入料口,所述第一攪拌槳置于倒U形管的入口管路內,倒U形管上安裝有攪拌電機,且攪拌電機的輸出軸和第一攪拌槳連接;所述絮凝槽的頂部安裝有變頻減速電機,且變頻減速電機的輸出軸連接有置于絮凝槽內部的第二攪拌槳,所述絮凝槽的頂部設置有排氣口、上部設置有浮渣液出口、底部設置有排污口、下部設置有和管道混凝器的出料口管路連接的進料口;所述管道混凝器的出口和入口依次連接,前端的管道混凝器的進料口與原料液a管線連通、后端的管道混凝器物料出口與絮凝槽下部的進料口連接;所述管道混凝器和絮凝槽的入口處分別設有加藥口b、加藥口d;
A加藥箱,所述A加藥箱和加藥口b連接;
B加藥箱,所述B加藥箱和加藥口d連接;
串螺污泥脫水機,所述浮渣液出口通過管路B與串螺污泥脫水機連接,且串螺污泥脫水機的下部設置有濾液出口,所述串螺污泥脫水機上設置有污泥出口;
離心氣浮機,所述濾液出口通過管路G與離心氣浮機上部的濾液入口連接,所述離心氣浮機上設置有浮渣出口和清水出口;
空壓機,所述空壓機通過管道e連接有溶氣罐,且溶氣罐產生的溶氣水通過管道F和離心氣浮機連接;
螺旋輸送機,所述污泥出口鏈接螺旋輸送機;
浮渣箱,所述浮渣出口通過管道c和浮渣箱連接;
清水箱,所述清水出口通過管道D和清水箱連接。
作為本發明的一種優選的技術方案,還包括底座,所述絮凝槽安裝于底座的頂部。
作為本發明的一種優選的技術方案,所述絮凝槽的側表面安裝有固定盤,且固定盤的側表面設置有支撐桿。
作為本發明的一種優選的技術方案,所述支撐桿的頂部安裝有支撐座,且支撐座上設置有抵接部件和支撐部件。
作為本發明的一種優選的技術方案,所述抵接部件包括彈性塊,所述彈性塊對稱設置于支撐座的內側面,且彈性塊的一端連接有限定塊。
作為本發明的一種優選的技術方案,所述支撐部件包括水平座,所述水平座安裝于支撐座的內底部中間位置。
作為本發明的一種優選的技術方案,所述水平座的底部設置有凸起,所述支撐座的內底部開設有凹槽,且凹槽的內側面設置有對稱分布的擋塊,所述凸起插入凹槽的內部,并抵接在擋塊上。
本發明還公開了電脫鹽污水處理方法,所述方法如下:
入口管路內第一攪拌槳的高速運轉形成強勁的紊流,聚集了充分的能量,有效破壞離子彼此間的排斥力的同時與A加藥箱內的A藥劑和B加藥箱內的B藥劑快速混合,增強離子間反復碰撞并快速凝集;
浮渣液進入串螺污泥脫水機,污泥置于螺旋輸送機上進行輸送處理,濾液置于離心氣浮機內;
空壓機壓縮空氣通過管道e進入溶氣罐,此時產生的溶氣水通過管道F進入離心氣浮機,離心氣浮機產生的浮渣由浮渣出口通過管道c進入浮渣箱,實現浮渣的集中處理,產生的清水由清水出口通過管道D進入清水箱達標后外排。
與現有技術相比,本發明的有益效果是:
離心氣浮機產生的浮渣由浮渣出口通過管道c進入浮渣箱,實現浮渣的集中處理,污泥置于螺旋輸送機上進行輸送處理,從而可對污泥進行集中處理,提高處理的效率;
通過增設的支撐座,以及在支撐座上增設的抵接部件和支撐部件,有助于進一步增加對管路B的支撐。
(發明人:金敬珉;金斗星;葉恩貴;付曉華;李桐強)






