申請日2016.05.31
公開(公告)日2017.04.05
IPC分類號C02F3/30; C02F101/16
摘要
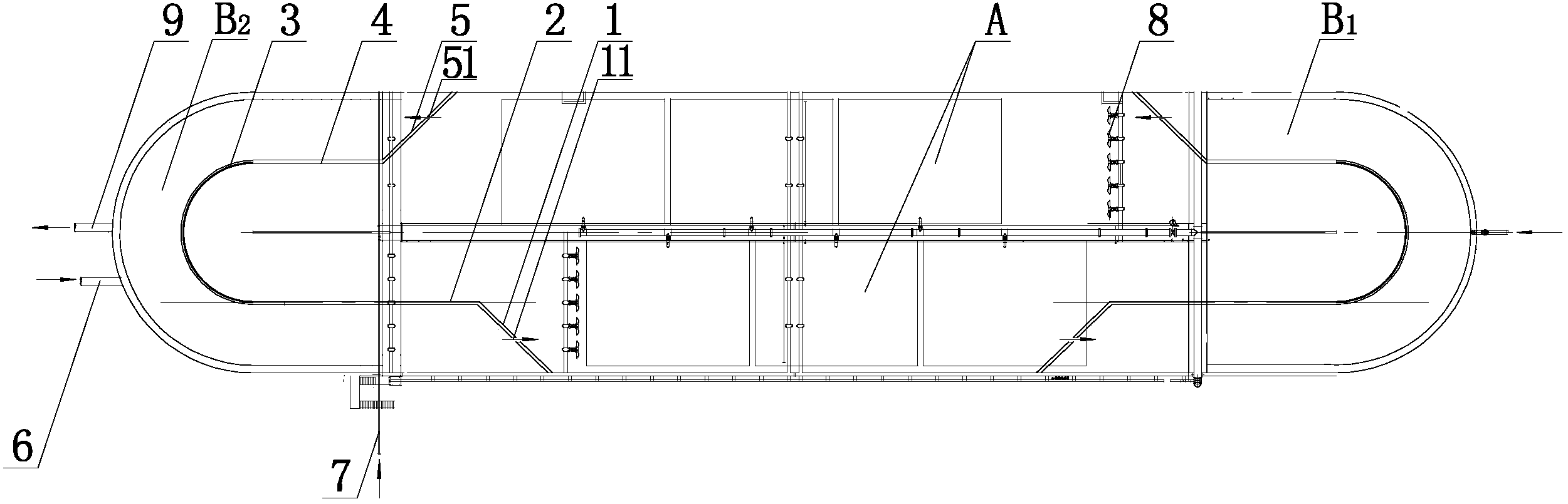
本實用新型涉及一種印染廢水高效脫氮裝置,屬于水、廢水、污水或污泥的處理技術領域。包括曝氣區和反硝化區,所述的反硝化區對稱設置于曝氣區兩端,曝氣區與反硝化區之間設置有過流板、隔流板一、循環弧板、隔流板二和返流板,進水管自曝氣區底部連入。將實用新型應用于印染廢水脫氮,具有脫氮效率高、占地面積小、改造成本低等優點。
摘要附圖
權利要求書
1.印染廢水高效脫氮裝置,其特征在于:包括曝氣區和反硝化區,所述的反硝化區設置有兩個,對稱位于曝氣區的兩端,曝氣區與反硝化區之間設置有過流板、隔流板一、循環弧板、隔流板二和返流板,且過流板、隔流板一、循環弧板、隔流板二和返流板順次連接,將反硝化區與曝氣區隔斷;所述的過流板上設置有過流口,過流口處設置有泵,將曝氣區的流體經過流口吸入反硝化區,返流板上設置有返流口,用于將反硝化處理后的流體回入曝氣區;進水管自曝氣區底部連入;待處理廢水自進水管進入曝氣區,進入曝氣區的廢水處理后由泵經過流口壓入過流板、隔流板一、循環弧板、隔流板二和返流板所圍成的反硝化區中,再經過流板上的過流口重新返回曝氣區,經出水管排出;所述的過流板傾斜設置;所述的隔流板傾斜設置。
2.如權利要求1所述的印染廢水高效脫氮裝置,其特征在于:所述的反硝化區側邊連接有備用管。
3.如權利要求1所述的印染廢水高效脫氮裝置,其特征在于:所述的曝氣區中設置有攪拌器。
4.如權利要求1所述的印染廢水高效脫氮裝置,其特征在于:所述的過流板一端與曝氣區外壁連接,另一端與隔流板一連接,返流板一端與隔流板二連接,另一端與曝氣區的另一側外壁連接,過流板、隔流板一、循環弧板、隔流板二和返流板與其外側的曝氣區外壁形成封閉的反硝化區,對應的過流板、隔流板一、循環弧板、隔流板二和返流板與其內側的曝氣區外壁形成封閉的曝氣區。
5.如權利要求1-4任一項所述的印染廢水高效脫氮裝置,其特征在于:所述的曝氣區并列設置有多個,對應的每個曝氣區上兩端處分別設置一對反硝化區。
說明書
印染廢水高效脫氮裝置
技術領域
本實用新型涉及一種印染廢水高效脫氮裝置,屬于水、廢水、污水或污泥的處理技術領域。
背景技術
印染廢水中通常會含有NO3-、NH4+,這些離子的存在會影響排放廢水的總含氮量,總含氮量過高,會造成水體富營養化,因此,處理過程中通常進行脫氮處理。常用的脫氮方式主要由三種:第一種是采用氧化溝的結構,如圖1所示的裝置,其按照圖1所示將處理池分為曝氣區1a(硝化區)和非曝氣區(反硝化區),曝氣區1a(硝化區)溶解氧要求在3-5mg/L,非曝氣區(反硝化區)單次過流反應時間非常短,實際溶解氧遠高于0.5mg/l,氧化溝內硝化反應充足而反硝化反應不充分,總氮去除率一般在40%—50%;第二種是先設置一個反硝化工藝系統或反硝化區,再曝氣處理系統(設置硝化工藝段)或硝化區,曝氣處理系統(設置硝化工藝段)或硝化區的泥水混合物通過內回流送至反硝化工藝系統或反硝化區,其操作過程中反硝化工藝段或反硝化區的污廢水作為碳源,要求內回流比控制在100-300%,流量較大,對管道內徑要求較高,建造成本高;第三種是污廢水曝氣處理系統(作為硝化段)后單獨設置反硝化處理系統(作為反硝化段),曝氣處理系統(作為硝化段)溶解氧要求在3-5mg/L,將NH4+轉化為NO2-,屬于有氧處理區,反硝化處理系統(作為反硝化段)則將溶解氧控制在0.5mg/L以下,將NO3-轉化為N2,需要外加CH3OH作為反硝化碳源,其處理成本較高。
基于此,做出本申請。
實用新型內容
為了克服現有脫氮工序所存在的上述缺陷,本申請提供一種印染廢水高效脫氮裝置。
為實現上述目的,本申請采取的技術方案如下:
印染廢水高效脫氮裝置,包括曝氣區和反硝化區,所述的反硝化區有兩個,分別對稱設置在曝氣區的兩端,曝氣區與反硝化區之間設置有過流板、隔流板一、循環弧板、隔流板二和返流板,且過流板、隔流板一、循環弧板、隔流板二和返流板順次連接,將反硝化區與曝氣區隔斷;所述的過流板上設置有過流口,過流 口處設置有泵,將曝氣區的流體經過流口吸入反硝化區,返流板上設置有返流口,用于將反硝化處理后的流體回入曝氣區;進水管自曝氣區底部連入;待處理廢水自進水管進入曝氣區,經曝氣處理后,廢水由泵經過流口壓入過流板、隔流板一、循環弧板、隔流板二和返流板所圍成的反硝化區中,再經過流板上的過流口重新返回曝氣區,經出水管排出。
進一步的,作為優選:
所述的過流板傾斜設置,起到導流的效果,避免出現死角。
所述的隔流板傾斜設置,起到導流的效果,避免出現死角。
所述的反硝化區側邊連接有備用管,用于提供外加碳源。
所述的曝氣區中設置有攪拌器。
所述的過流板一端與曝氣區外壁連接,另一端與隔流板一連接,返流板一端與隔流板二連接,另一端與曝氣區的另一側外壁連接,過流板、隔流板一、循環弧板、隔流板二和返流板與其外側的曝氣區外壁形成封閉的反硝化區,對應的過流板、隔流板一、循環弧板、隔流板二和返流板與其內側的曝氣區外壁形成封閉的曝氣區,以確保反硝化區與曝氣區的充分隔斷,曝氣區與反硝化區僅通過泵和返流口連通。
所述的曝氣區并列設置有多個,對應的每個曝氣區上設置有兩個反硝化區,且該兩個反硝化區對稱設置在對應的曝氣區兩端。
將本申請應用于印染廢水的脫氮處理,反硝化區在曝氣區的兩端對稱設置,而曝氣區可設置為一個,也可設置為相互平行的兩個或更多個,不同的結構可實現不同處理量的廢水處理,待處理廢水自曝氣區和反硝化區的底部供入,其中,曝氣區中,在曝氣區中所設置的攪拌器推動水流動;而曝氣區與反硝化區相互隔斷,并僅通過安裝在過流板上的泵和返流板上的返流口連通,整個裝置從曝氣區內部進行隔開,同時,經泵供入反硝化區的流體中額外增加印染廢水,該印染廢水的添加量控制在反硝化區總進水量的1/4-1/5,以確保反硝化區中廢水停留時長,可作為反硝化碳源使用,降低成本,當該泵入的流體不足時,啟動備用管進行外加碳源加入,強化反硝化效果,在完成流體回流使用并保證反硝化充分的同時,避免了內循環改造工作,整體占地面積小,并減輕了內循環壓力;曝氣區上隔離出來的反硝化區延長了待處理廢水在反硝化區的停留時間,處理效率大大提 高,將處理后廢水中氮含量由80-90mg/L降低至10mg/L以下,脫氮處理后可直接進行排放,而不會造成富營養化現象。


