公布日:2024.05.14
申請日:2024.03.15
分類號:C02F1/52(2023.01)I;B08B9/087(2006.01)I
摘要
本發明涉及污水處理技術領域,且公開了一種具有污水凈化功能的污水處理裝置,該具有污水凈化功能的污水處理裝置,包括機架,所述機架后側固定安裝有進液管,所述機架前側固定安裝有出液管。該具有污水凈化功能的污水處理裝置,配合固定塊、伺服電機、往復絲桿、螺紋塊、長槽、長條塊、滑桿和U型刮條,使得污水和絮凝劑充分混合,從而凈化效果更好,當絮凝物逐漸出現并增多時,配合圓筒、粗桿、細桿、浮板、通孔、頂塊、按壓桿、貼緊彈簧和控制器,將伺服電機關停,從而避免絮凝物再次被打散,影響凈化后水體的純凈度,而自動關停的方式使得操作人員不用一直守候在處理裝置本體附近,觀察機架內部污水內部絮凝物的生成情況。

權利要求書
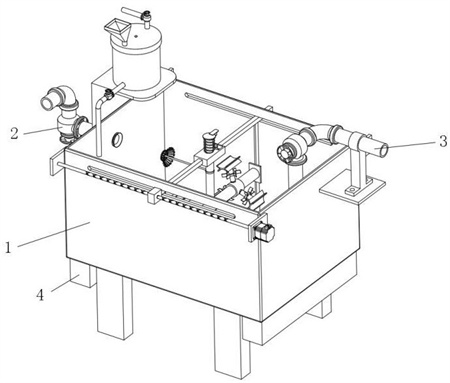
1.一種具有污水凈化功能的污水處理裝置,包括機架(1),所述機架(1)后側固定安裝有進液管(2),所述機架(1)前側固定安裝有出液管(3),所述機架(1)底端固定安裝有出料口(4),所述機架(1)頂部固定安裝有混合桶(51),所述混合桶(51)頂部固定安裝有進料斗(52)和進水管(53),所述混合桶(51)底端的弧形內壁固定安裝有出水管(54),其特征在于:所述機架(1)上設置有移動組件(6)、輔助組件(7)和清潔組件(8),所述移動組件(6)包括:固定塊(61),所述機架(1)頂端外壁固定安裝有固定塊(61),所述固定塊(61)設置有多組,所述機架(1)左端的固定塊(61)外壁固定安裝有伺服電機(62),所述機架(1)左端的固定塊(61)之間轉動安裝有往復絲桿(63),所述伺服電機(62)輸出端固定連接所述往復絲桿(63)外側,所述往復絲桿(63)外側螺紋安裝有螺紋塊(64),所述機架(1)左右方向側壁上開設有貫穿的長槽(65),所述螺紋塊(64)外側固定安裝有長條塊(66),所述長條塊(66)滑動貼合于所述長槽(65)內部,所述機架(1)右端的固定塊(61)之間固定安裝有滑桿(67),所述長條塊(66)遠離所述螺紋塊(64)的一端內部滑動貼合所述滑桿(67)外側,所述長條塊(66)底部固定安裝有U型刮條(68),所述U型刮條(68)外壁滑動貼合所述機架(1)內壁;圓筒(69),所述長條塊(66)內部固定安裝有圓筒(69),所述圓筒(69)內部滑動安裝有粗桿(610),所述粗桿(610)底部固定安裝有細桿(611),所述細桿(611)滑動安裝于所述圓筒(69)內部,所述細桿(611)底部固定安裝有浮板(612),所述浮板(612)上開設有貫穿的通孔(613);頂塊(614),所述粗桿(610)頂部固定安裝有頂塊(614),所述頂塊(614)底部固定安裝有按壓桿(615),所述長條塊(66)內部固定安裝有控制器(616),所述控制器(616)與所述伺服電機(62)電性連接,所述粗桿(610)外側套設有貼緊彈簧(617)。
2.根據權利要求1所述的一種具有污水凈化功能的污水處理裝置,其特征在于:所述細桿(611)和浮板(612)設置有兩組,且兩組所述細桿(611)和浮板(612)均以所述U型刮條(68)左右方向上的豎直中線為鏡像軸,鏡像設置在所述U型刮條(68)前后兩端。
3.根據權利要求1所述的一種具有污水凈化功能的污水處理裝置,其特征在于:所述按壓桿(615)位于所述控制器(616)的正上方,所述貼緊彈簧(617)頂部固定連接所述頂塊(614)底部,所述貼緊彈簧(617)底部固定連接所述長條塊(66)頂部。
4.根據權利要求1所述的一種具有污水凈化功能的污水處理裝置,其特征在于:所述輔助組件(7)包括長桿(71),所述圓筒(69)外壁固定安裝有長桿(71),所述長桿(71)遠離所述圓筒(69)的一端固定安裝有十字型圓環塊(72),所述十字型圓環塊(72)前端外壁固定安裝有簧片(73),所述進液管(2)前端開口外壁固定安裝有錐形罩(74)。
5.根據權利要求4所述的一種具有污水凈化功能的污水處理裝置,其特征在于:所述簧片(73)設置有多組,且多組所述簧片(73)以所述十字型圓環塊(72)圓形截面圓心為陣列中心等間距圓周陣列。
6.根據權利要求4所述的一種具有污水凈化功能的污水處理裝置,其特征在于:所述進液管(2)前端開口、十字型圓環塊(72)與錐形罩(74)三者的圓形截面圓心同軸心,所述錐形罩(74)前端圓形截面的面積大于其后端圓形截面的面積,所述十字型圓環塊(72)的外徑與所述進液管(2)前端開口的內徑大小相適配。
7.根據權利要求1所述的一種具有污水凈化功能的污水處理裝置,其特征在于:所述清潔組件(8)包括短柱(81),所述圓筒(69)底端外側固定安裝有短柱(81),所述出液管(3)底端外側滑動安裝有圓環盤(82),所述圓環盤(82)底部固定安裝有濾籃(83),所述濾籃(83)底部固定安裝有斜面塊(84),所述短柱(81)與斜面塊(84)在前后方向上處于同一豎直平面內。
8.根據權利要求7所述的一種具有污水凈化功能的污水處理裝置,其特征在于:所述圓環盤(82)頂部固定安裝有短桿(85),所述短桿(85)頂部固定安裝有限位塊(86),所述出液管(3)底端外側固定安裝有側塊(87),所述短桿(85)滑動安裝于所述側塊(87)內部。
9.根據權利要求1所述的一種具有污水凈化功能的污水處理裝置,其特征在于:所述機架(1)內部設置有轉動組件(9),所述U型刮條(68)左右方向上的內壁之間轉動安裝有橫軸(91),所述圓筒(69)貫穿所述橫軸(91),所述橫軸(91)外側固定安裝有轉筒(92),所述轉筒(92)外側固定安裝有連桿(93),所述連桿(93)遠離所述轉筒(92)的一端固定安裝有弧形塊(94),所述連桿(93)外側轉動安裝有葉輪(95)。
10.根據權利要求9所述的一種具有污水凈化功能的污水處理裝置,其特征在于:所述弧形塊(94)的圓形運動軌跡與所述機架(1)、長條塊(66)以及U型刮條(68)均不相交,所述轉筒(92)設置有兩組,且單組所述轉筒(92)外側的所述連桿(93)、弧形塊(94)以及葉輪(95)設置有多組。
發明內容
本發明的目的在于提供一種具有污水凈化功能的污水處理裝置,以解決上述背景技術中提出的問題。
為實現上述目的,本發明提供如下技術方案:一種具有污水凈化功能的污水處理裝置,包括機架,所述機架后側固定安裝有進液管,所述機架前側固定安裝有出液管,所述機架底端固定安裝有出料口,所述機架頂部固定安裝有混合桶,所述混合桶頂部固定安裝有進料斗和進水管,所述混合桶底端的弧形內壁固定安裝有出水管,所述機架上設置有移動組件、輔助組件和清潔組件,所述移動組件包括:固定塊,所述機架頂端外壁固定安裝有固定塊,所述固定塊設置有多組,所述機架左端的固定塊外壁固定安裝有伺服電機,所述機架左端的固定塊之間轉動安裝有往復絲桿,所述伺服電機輸出端固定連接所述往復絲桿外側,所述往復絲桿外側螺紋安裝有螺紋塊,所述機架左右方向側壁上開設有貫穿的長槽,所述螺紋塊外側固定安裝有長條塊,所述長條塊滑動貼合于所述長槽內部,所述機架右端的固定塊之間固定安裝有滑桿,所述長條塊遠離所述螺紋塊的一端內部滑動貼合所述滑桿外側,所述長條塊底部固定安裝有U型刮條,所述U型刮條外壁滑動貼合所述機架內壁;圓筒,所述長條塊內部固定安裝有圓筒,所述圓筒內部滑動安裝有粗桿,所述粗桿底部固定安裝有細桿,所述細桿滑動安裝于所述圓筒內部,所述細桿底部固定安裝有浮板,所述浮板上開設有貫穿的通孔;頂塊,所述粗桿頂部固定安裝有頂塊,所述頂塊底部固定安裝有按壓桿,所述長條塊內部固定安裝有控制器,所述控制器與所述伺服電機電性連接,所述粗桿外側套設有貼緊彈簧。
優選的,所述細桿和浮板設置有兩組,且兩組所述細桿和浮板均以所述U型刮條左右方向上的豎直中線為鏡像軸,鏡像設置在所述U型刮條前后兩端,從而使得所述粗桿更容易運動。
優選的,所述按壓桿位于所述控制器的正上方,所述貼緊彈簧頂部固定連接所述頂塊底部,所述貼緊彈簧底部固定連接所述長條塊頂部。
優選的,所述輔助組件包括長桿,所述圓筒外壁固定安裝有長桿,所述長桿遠離所述圓筒的一端固定安裝有十字型圓環塊,所述十字型圓環塊前端外壁固定安裝有簧片,所述進液管前端開口外壁固定安裝有錐形罩。
優選的,所述簧片設置有多組,且多組所述簧片以所述十字型圓環塊圓形截面圓心為陣列中心等間距圓周陣列,從而使得刮除效果更好。
優選的,所述進液管前端開口、十字型圓環塊與錐形罩三者的圓形截面圓心同軸心,所述錐形罩前端圓形截面的面積大于其后端圓形截面的面積,所述十字型圓環塊的外徑與所述進液管前端開口的內徑大小相適配。
優選的,所述清潔組件包括短柱,所述圓筒底端外側固定安裝有短柱,所述出液管底端外側滑動安裝有圓環盤,所述圓環盤底部固定安裝有濾籃,所述濾籃底部固定安裝有斜面塊,所述短柱與斜面塊在前后方向上處于同一豎直平面內,從而使得二者能順利接觸貼合。
優選的,所述圓環盤頂部固定安裝有短桿,所述短桿頂部固定安裝有限位塊,所述出液管底端外側固定安裝有側塊,所述短桿滑動安裝于所述側塊內部。
優選的,所述機架內部設置有轉動組件,所述U型刮條左右方向上的內壁之間轉動安裝有橫軸,所述圓筒貫穿所述橫軸,所述橫軸外側固定安裝有轉筒,所述轉筒外側固定安裝有連桿,所述連桿遠離所述轉筒的一端固定安裝有弧形塊,所述連桿外側轉動安裝有葉輪。
優選的,所述弧形塊的圓形運動軌跡與所述機架、長條塊以及U型刮條均不相交,從而防止產生運動干涉,所述轉筒設置有兩組,且單組所述轉筒外側的所述連桿、弧形塊以及葉輪設置有多組,從而使得攪拌效果更好。
與現有技術相比,本發明提供了一種具有污水凈化功能的污水處理裝置,具備以下有益效果:1、該具有污水凈化功能的污水處理裝置,配合固定塊、伺服電機、往復絲桿、螺紋塊、長槽、長條塊、滑桿和U型刮條,使得污水和絮凝劑充分混合,從而凈化效果更好,當絮凝物逐漸出現并增多時,配合圓筒、粗桿、細桿、浮板、通孔、頂塊、按壓桿、貼緊彈簧和控制器,將伺服電機關停,從而避免絮凝物再次被打散,影響凈化后水體的純凈度,而自動關停的方式使得操作人員不用一直守候在處理裝置本體附近,觀察機架內部污水內部絮凝物的生成情況。
2、該具有污水凈化功能的污水處理裝置,同時為了進一步提升污水的凈化效果,通過設置有輔助組件,當圓筒朝向機架后側的進液管運動時,從而帶動長桿和十字型圓環塊同步同向運動,從而帶動簧片同步同向運動,從而配合錐形罩使得多組簧片收縮彎折,從而十字型圓環塊和簧片能對進液管前端開口內部的污水中的雜質殘留物進行刮除,繼而能進一步提升污水的凈化效果。
3、該具有污水凈化功能的污水處理裝置,為了提高凈化后污水的純凈度,通過設置有清潔組件,當圓筒朝向機架前側的出液管運動時,從而帶動短柱同步同向運動,從而配合圓環盤、斜面塊、短桿、限位塊和側塊,使得濾籃在出液管底端外側運動,從而避免濾籃的濾孔堵塞,而影響后續對凈化后水體的抽取。
4、該具有污水凈化功能的污水處理裝置,為了使得污水凈化的效果更好,通過設置有轉動組件,當圓筒前后往復運動時,從而配合橫軸和轉筒,使得連桿帶動弧形塊同步轉動,同時帶動葉輪轉動,從而能使得污水和絮凝劑充分混合,繼而使得污水凈化的效果更好。
(發明人:陳楚平)






