1 前言
隨著城市經濟的快速發展,人們對環境保護日益重視以及國家“ 節能減排”政策的深入貫徹, 為保護生態環境,滿足城市發展對水資源的基本需求,污水處理廠的建設任務日益增多。城市生活污水處理廠構筑物基本上均為鋼筋混凝土構筑物,混凝土既要強度達標,還要具備非常強的抗滲、防裂、防腐性能。當水工構筑物池體發生滲漏問題時,需要終止污水處理廠工作,進行修理,會導致該區域污水排放不暢,甚至對地下水、土壤等產生污染。故而,污水處理廠工程實踐中,一定要保證構筑物質量達標,使之具備較強的抗滲、防裂性能。
2 工程概況
福州市連坂污水處理廠位于位于福州市南臺島東北角,福泉高速公路收費口以南。按統一規劃、一次征地、分期建設,40萬m3/d 用地面積15.48 公頃,一期已建規模10 萬m3/d,本次二期擴建工程規模為10 萬m3/d。主要構筑物包括AAO生物反應池、二沉池、中間提升泵房與高效沉淀池、濾布濾池等。
3 水工構筑物施工難點
混凝土抗滲防裂要求較高,既要具備較強的抗腐蝕性,還要對堿集料進行有效控制,使混凝土質量達標;無論平面尺寸、單體容積,還是混凝土澆筑量都非常大,并且水工構筑物池壁高,池體長,混凝土施工時水化熱大,易產生裂縫;池體施工中,存在施工縫、變形縫、穿墻螺栓等一系列問題,結合位置一旦處理不當,會發生嚴重滲水情況。
4 水工構筑物池體滲漏原因分析
針對福州市連坂污水處理廠一期發生水池滲漏的問題,對造成構筑物漏水問題的原因進行分析,主要包括以下幾個方面:
(1)鋼筋保護層厚度控制不到位,引起鋼筋銹蝕,混凝土出現裂縫;(2)沒有按要求處理好施工縫、沉降縫、伸縮縫等各類構造;
(3)預埋件周邊混凝土不夠密實、止水鋼板位置偏差;(4)穿墻管道周圍混凝土振搗不密實形成蜂窩孔洞;(5)模板對拉螺栓防水構造不合理等。
5 水工構筑物池體裂縫控制措施
池體裂縫控制主要通過控制構筑物抗滲混凝土結構,增強其密實度,使污水處理廠構筑物具備較強的防滲、抗裂性能。該過程中,質量控制非常關鍵,故而,應把水工構筑物混凝土施工質量作為監控重點,確保混凝土質量達標。
5.1 鋼筋綁扎
科學綁扎鋼筋,使之保持牢固,在規范許可范圍內,將尺寸偏差降到最低。保護層墊塊的厚度和位置按規范及設計圖紙要求設置,使之達標,以免因混凝土振搗,對鋼筋產生影響,發生偏移、漏筋情況。
5.2 混凝土澆筑施工
5.2.1 原材料控制
本工程水工構筑物,混凝土等級和抗滲等級均已知,分別為C30 和S8,水泥品種推薦使用42.5 普通硅酸鹽,為保證強度、抗滲性能達標,水膠比和水泥用量分別控制在 0.5 和 320kg/ m3~350kg/m3 以內。其中,水泥中最大氯離子、堿含量分別控制在0.1% 和3kg/m3之內。優選最佳方法,對粗細骨料加以控制,使超長構筑物具備較強抗滲性,規避裂縫情況。在粗骨料中,級配碎石采用粒徑5mm~21.5mm 的級配碎石,石子含泥量控制在1% 以下,而細骨料以中砂、河砂為主,含泥量控制在3% 以內。依據工程情況,適量摻加外加劑,各外加劑均應送檢合格后方可使用,合格證、出廠證明齊全,配比準確后,攪拌處理。具體聯系污水寶或參見http://m.dongaorq.cn更多相關技術文檔。
5.2.2 混凝土澆筑振搗及養護
首先,采用專業技術手段,清理掉墊層、混凝土表層明水,本工程水工構筑物均使用新模板以保證模板剛度、強度及接縫位置嚴密度達標,無漏漿情況,繼而連續澆筑混凝土。其中,池壁混凝土澆筑過程非常講究,時刻敲擊模板,對漏振情況進行規避。二次振搗也非常關鍵,注重時機把控。底板混凝土澆筑完畢后進行二次壓光,防止表面產生裂縫。振搗過程,振動棒要與鋼筋、模板等保持距離,一邊澆筑,一邊對鋼筋位置、保護層進行檢查,通過調整,規避露筋情況。
其次,混凝土澆筑應控制其自然傾落高度,澆筑池壁板混凝土時,為避免因高度過大出現離析問題,可靈活選擇串筒、溜槽等方式;正確振搗混凝土,直至表層泛漿,無氣泡問題,明確振搗重點,熟練掌握各類工藝技術。振搗過程中,振搗力度要適宜,還要避免過振或振搗不足問題。混凝土澆筑厚度,用標尺衡量,每層高度度不宜超過 50cm,嚴禁一次過厚澆筑,控制下層混凝土插入深度,在5cm 以上,禁止觸碰模板、鋼筋、止水帶等各工程部件;正確的澆筑工序是由低到高,還要兼顧分層和連續性,保證上一層混凝土尚未初凝時,便已結束第二層混凝土澆筑工作;
第三,內部水化熱在混凝土澆筑工作中較常見,溫度裂縫也因內外溫差過大所致。夏季溫度相對比較高,收縮裂縫的形成是由混凝土表面水分蒸發引起的。因而,要時刻關注養護過程。污水廠內部的水處理構筑物相對比較特殊,結構復雜,底板厚度大,墻體又過薄,內外溫差是一大弊病,恰體現了養護工作的重要性。結束混凝土澆筑工作12h 之后,覆蓋保濕,把養護時間控制在14d 以上。
該工程池體施工階段過程中,多數大體積混凝土施工工作均在夏季,故而,池壁、底板位置混凝土養護工作尤為關鍵。底板可覆蓋塑料薄膜,保濕保溫養護。池壁混凝土澆筑完成后灑水養護,至少養護 7 天后方可拆除池壁側模,拆模后在池壁頂布設一根Φ40pvc 管,管上每隔 30cm 鉆一個 Φ4 mm 孔眼用于噴淋,派專人養護。
5.3 施工縫施工
禁止把施工縫留置在混凝土底板、頂板位置。把水平縫與底板頂部距離控制在30cm以上。假定池壁有孔洞,施工縫與孔洞邊緣也要間隔30cm以上。本工程,把-300×3.0 鋼板止水片用作施工縫處理,在池壁中間設置,施工縫上下各1/2 位置埋設。焊接鋼筋與止水鋼板,增強其牢固性,還要支正,搭接長度以5cm為宜,并滿焊立縫兩端。如圖1 所示,水平施工縫示意圖。

圖1 水平施工縫示意圖
澆筑底板混凝土時,到達止水鋼板中間部位,池壁支模板時,鑿毛施工縫位置混凝土,把雜物、浮粒等清除掉,還要經高壓沖洗。施工縫清理干凈之后,二次澆筑混凝土,再用高壓水沖洗,直至施工縫表層無雜物、積水。按照正確的流程和方法澆筑池壁混凝土,預先鋪設水泥砂漿,厚度以2cm~3cm 為宜,分別在止水鋼板兩端開展振搗工作,控制間距,使之在40cm 以內,達到預期效果。
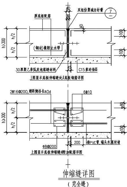
5.3 伸縮縫施工
為克服池體溫度應力過大而破壞整體結構這一問題,把伸縮縫設置在超長構筑物位置。其結構防水性能差,既要能夠適應溫度伸縮,還要防止結構變形。嚴禁伸縮縫位置有貫穿通道,規避滲漏問題。該工況下,把鋼邊橡膠止水帶用到伸縮縫中,嵌縫密封料采用雙組份聚硫密封膠密封。進場前,對其質量進行多次核查,合理存放,以免被鋼筋劃傷,規避漏水問題。采用正確方法,安裝橡膠止水帶,其中央圓環、沉降縫中軸線一定要重合。如圖 2 和圖 3 所示,分別為伸縮縫詳細圖和鋼邊橡膠止水帶。 

圖3 鋼邊橡膠止水帶
混凝土澆筑過程中,橡膠止水帶位置偏移多因振搗不當所致。一定要科學支撐橡膠止水帶,將其固定。安裝模板過程中,還要依次固定頂、斜撐及止水帶。安裝專業人員監控混凝土振搗過程。
禁止在現場搭接止水帶,倘若嚴密度不夠,會形成滲水通道。澆筑混凝土時,嚴格把控橡膠止水帶,使之位置保持不變,振密周邊混凝土,規避超、漏振情況。混凝土設計強度達標后,拆模,嵌縫施工。在第一時間把沉降縫表層雜物等清除干凈,完成防污膠帶設置后,嵌縫處理。密封膏攪拌工作按要求進行,禁止氣泡進入。嵌填密封膏后,把養護時間確定為2d~3d。
5.3 預埋套管和管件施工
把止水環片設置在池壁各套管上,清除表面銹蝕,以免安裝工作中,套管、混凝土之間出現縫隙,影響防水性能。套管安裝過程中,注重水平度、中心標高把控,將其與相鄰鋼筋焊接。加固筋數量多,且分布在預埋套管周邊,采用分層下料方式,澆筑混凝土。倘若預埋套管口徑過大,在DN1000mm 以上,從單側下料后,振搗,直至混凝土從另一側流出,繼而從兩側下料。倘若在兩側同時下料,預埋套管底部會發生窩氣情況,導致套管底部混凝土空洞,引發滲漏。
5.4 處理穿墻螺栓
發揮工具式螺栓優勢,對模板進行固定,對拉螺栓居中加焊3 厚方形止水片,滿焊止水片和螺栓。完成拆模工作后,把螺栓截斷,并使用聚合物水泥砂漿,密封構件表層。如圖4 所示,固定模板用對拉螺栓。

圖4 固定模板用對拉螺栓
6 結語
通過采用以上針對本工程水工構筑物主要部位施工方法和措施開展施工,竣工后,經滿水試驗,各池滲漏量在≤1.2 L/(㎡·d)以下,與規范相符,水廠性能良好。(來源:福建一建集團有限公司)


