公布日:2023.12.01
申請日:2023.10.08
分類號:C02F11/145(2019.01)I;C02F11/143(2019.01)I;C02F11/121(2019.01)I;C02F11/127(2019.01)I
摘要
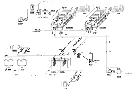
本申請提供了一種連續式處理污泥脫水設備,包括高壓彈性壓榨機、污泥調理池、濃縮池。其中,濃縮池一端接入污泥;污泥調理池輸入端與濃縮池輸出端相連通,污泥調理池用于調節污泥的酸堿性,污泥調理池通過先后向污泥內加入堿性物質和鐵鹽的方式調節池內的污泥酸堿度;高壓彈性壓榨機輸入端與污泥調理池的輸出端相連通,高壓彈性壓榨機用于將完成酸堿度調節后的污泥進行壓榨脫水。本申請提供的連續式處理污泥脫水設備,可實現對污泥連續脫水處理,并且對污泥進行調理,將污泥調節為中性,大幅度降低污泥的腐蝕性,使得處理后的污泥更加環保。

權利要求書
1.一種連續式處理污泥脫水設備,其特征在于,所述連續式處理污泥脫水設備包括:濃縮池,所述濃縮池一端接入污泥;污泥調理池,所述污泥調理池輸入端與所述濃縮池輸出端相連通,所述污泥調理池用于調節污泥的酸堿性,所述污泥調理池通過先后向污泥內加入堿性物質和鐵鹽的方式調節池內的污泥酸堿度;高壓彈性壓榨機,所述高壓彈性壓榨機輸入端與所述污泥調理池的輸出端相連通,所述高壓彈性壓榨機用于將完成酸堿度調節后的污泥進行壓榨脫水。
2.根據權利要求1所述的一種連續式處理污泥脫水設備,其特征在于,所述污泥調理池包括:堿化槽,所述堿化槽一側設置有污泥輸入管;堿性物質輸入管,所述堿性物質輸入管的末端伸入到所述堿化槽內;中和槽,所述中和槽設置于所述堿化槽的一側,所述中和槽的一側設置有污泥輸出管;污泥輸送裝置,所述污泥輸送裝置設置于所述堿化槽與所述中和槽之間,所述污泥輸送裝置用于將污泥由所述堿化槽輸送至所述中和槽內;鐵鹽輸入部,所述鐵鹽輸入部設置于所述中和槽的一側,所述鐵鹽輸入部用于向所述中和槽內輸入鐵鹽。
3.根據權利要求2所述的一種連續式處理污泥脫水設備,其特征在于:所述污泥輸送裝置為螺旋給料機構,所述螺旋給料機構傾斜設置,所述螺旋給料機構的底部輸入口設置于所述堿化槽的底部,所述螺旋給料機構的頂部出口位于所述中和槽一側上端。
4.根據權利要求3所述的一種連續式處理污泥脫水設備,其特征在于:所述堿性物質輸入管的出口端位于所述螺旋給料機構的底部輸入口附近。
5.根據權利要求2所述的一種連續式處理污泥脫水設備,其特征在于,所述鐵鹽輸入部包括:鐵鹽暫存腔,所述鐵鹽暫存腔位于所述污泥輸送裝置出口位置上方,所述鐵鹽暫存腔的底部設置有與所述中和槽相連通的輸送通道;鐵鹽輸送管,所述鐵鹽輸送管與所述鐵鹽暫存腔相連通,所述鐵鹽輸送管用于向所述鐵鹽暫存腔內輸送鐵鹽粉末;伸縮擋塊,所述伸縮擋塊滑動設置于與所述輸送通道相交的滑槽內,所述伸縮擋塊上開設有通孔;彈性件,所述彈性件位于所述滑槽內,所述彈性件的一端與所述滑槽相連,所述彈性件的另一端與所述伸縮擋塊相連;轉輪,所述轉輪可轉動設置于所述污泥輸送裝置出口位置,所述轉輪上均勻設置有若干擋板;當所述污泥輸送裝置向所述中和槽內輸送污泥時,污泥推動所述轉輪旋轉,而當所述擋板轉動至所述伸縮擋塊下方時,所述擋板頂回所述伸縮擋塊,使得所述伸縮擋塊上的通孔與所述輸送通道相連通。
6.根據權利要求2所述的一種連續式處理污泥脫水設備,其特征在于:所述污泥調理池還包括攪拌部,所述攪拌部設置于所述中和槽內,所述攪拌部用于對所述中和槽內的污泥進行攪拌。
7.根據權利要求6所述的一種連續式處理污泥脫水設備,其特征在于,所述攪拌部包括:動力部,所述動力部設置于所述中和槽的上方;攪拌軸,所述攪拌軸一端與所述動力部的動力輸出軸相連通,所述攪拌軸的另一端可轉動固定于所述中和槽的底部,所述攪拌軸為中空結構,所述攪拌軸上設置有進水孔,所述攪拌軸的頂部設置有進氣孔,所述進水孔由外向內傾斜朝下;抽氣泵,所述抽氣泵通過旋轉接頭與所述攪拌軸相連通;毛細管,所述毛細管套設于所述攪拌軸的外部,所述毛細管覆蓋所述進水孔。
8.一種連續式處理污泥脫水方法,采用了上述權利要求1-7中任意一項所述的連續式處理污泥脫水設備,其特征在于,所述連續式污泥脫水方法包括以下步驟:S1、污泥濃縮,將污泥通過管道輸入到濃縮池內進行濃縮,以對污泥進行初步的脫水處理;S2、污泥調理,將濃縮池內的污泥通過管道泵送至污泥調理池內,先向污泥內加入足量的堿性物質,以中和去除污泥中的酸性物質;而后向污泥中加入足量的鐵鹽,利用鐵鹽與多余的堿性物質反應而去除多余的堿性物質,以使得污泥呈中性,實現對污泥的酸堿度進行調理;S3、污泥壓榨脫水,將完成調理后的污泥輸送至高壓彈性壓榨機內,利用高壓彈性壓榨機對污泥進行進一步脫水;S4、污泥外運,將完成脫水后的污泥從高壓彈性壓榨機內取出并運走。
9.根據權利要求8所述的一種連續式處理污泥脫水方法,其特征在于:所述濃縮池的濃縮方式具體可為重力濃縮法、氣浮濃縮法、離心濃縮法。
發明內容
本發明的一個目的在于提供一種連續式處理污泥脫水設備,用以解決傳統的污泥脫水設備無法對污泥進行酸堿度進行調節,導致脫水處理后的污泥依舊具有一定腐蝕性的技術問題。
為實現上述目的,本發明采用的技術方案是:提供一種連續式處理污泥脫水設備,所述連續式處理污泥脫水設備包括:
濃縮池,所述濃縮池一端接入污泥;
污泥調理池,所述污泥調理池輸入端與所述濃縮池輸出端相連通,所述污泥調理池用于調節污泥的酸堿性,所述污泥調理池通過先后向污泥內加入堿性物質和鐵鹽的方式調節池內的污泥酸堿度;
高壓彈性壓榨機,所述高壓彈性壓榨機輸入端與所述污泥調理池的輸出端相連通,所述高壓彈性壓榨機用于將完成酸堿度調節后的污泥進行壓榨脫水。
在一個實施例中,所述污泥調理池包括:
堿化槽,所述堿化槽一側設置有污泥輸入管;
堿性物質輸入管,所述堿性物質輸入管的末端伸入到所述堿化槽內;
中和槽,所述中和槽設置于所述堿化槽的一側,所述中和槽的一側設置有污泥輸出管;
污泥輸送裝置,所述污泥輸送裝置設置于所述堿化槽與所述中和槽之間,所述污泥輸送裝置用于將污泥由所述堿化槽輸送至所述中和槽內;
鐵鹽輸入部,所述鐵鹽輸入部設置于所述中和槽的一側,所述鐵鹽輸入部用于向所述中和槽內輸入鐵鹽。
在一個實施例中,所述污泥輸送裝置為螺旋給料機構,所述螺旋給料機構傾斜設置,所述螺旋給料機構的底部輸入口設置于所述堿化槽的底部,所述螺旋給料機構的頂部出口位于所述中和槽一側上端。
在一個實施例中,所述堿性物質輸入管的出口端位于所述螺旋給料機構的底部輸入口附近。
在一個實施例中,所述鐵鹽輸入部包括:
鐵鹽暫存腔,所述鐵鹽暫存腔位于所述污泥輸送裝置出口位置上方,所述鐵鹽暫存腔的底部設置有與所述中和槽相連通的輸送通道;
鐵鹽輸送管,所述鐵鹽輸送管與所述鐵鹽暫存腔相連通,所述鐵鹽輸送管用于向所述鐵鹽暫存腔內輸送鐵鹽粉末;
伸縮擋塊,所述伸縮擋塊滑動設置于與所述輸送通道相交的滑槽內,所述伸縮擋塊上開設有通孔;
彈性件,所述彈性件位于所述滑槽內,所述彈性件的一端與所述滑槽相連,所述彈性件的另一端與所述伸縮擋塊相連;
轉輪,所述轉輪可轉動設置于所述污泥輸送裝置出口位置,所述轉輪上均勻設置有若干擋板;當所述污泥輸送裝置向所述中和槽內輸送污泥時,污泥推動所述轉輪旋轉,而當所述擋板轉動至所述伸縮擋塊下方時,所述擋板頂回所述伸縮擋塊,使得所述伸縮擋塊上的通孔與所述輸送通道相連通。
在一個實施例中,所述污泥調理池還包括攪拌部,所述攪拌部設置于所述中和槽內,所述攪拌部用于對所述中和槽內的污泥進行攪拌。
在一個實施例中,所述攪拌部包括:
動力部,所述動力部設置于所述中和槽的上方;
攪拌軸,所述攪拌軸一端與所述動力部的動力輸出軸相連通,所述攪拌軸的另一端可轉動固定于所述中和槽的底部,所述攪拌軸為中空結構,所述攪拌軸上設置有進水孔,所述攪拌軸的頂部設置有進氣孔,所述進水孔由外向內傾斜朝下;
抽氣泵,所述抽氣泵通過旋轉接頭與所述攪拌軸相連通;
毛細管,所述毛細管套設于所述攪拌軸的外部,所述毛細管覆蓋所述進水孔。
本發明的另一個目的在于提供一種連續式處理污泥脫水方法,采用了上述任意一項實施例中所述的連續式處理污泥脫水設備,所述連續式污泥脫水方法包括以下步驟:
S1、污泥濃縮,將污泥通過管道輸入到濃縮池內進行濃縮,以對污泥進行初步的脫水處理;
S2、污泥調理,將濃縮池內的污泥通過管道泵送至污泥調理池內,先向污泥內加入足量的堿性物質,以中和去除污泥中的酸性物質;而后向污泥中加入足量的鐵鹽,利用鐵鹽與多余的堿性物質反應而去除多余的堿性物質,以使得污泥呈中性,實現對污泥的酸堿度進行調理;
S3、污泥壓榨脫水,將完成調理后的污泥輸送至高壓彈性壓榨機內,利用高壓彈性壓榨機對污泥進行進一步脫水;
S4、污泥外運,將完成脫水后的污泥從高壓彈性壓榨機內取出并運走。
在一個實施例中,所述濃縮池的濃縮方式具體可為重力濃縮法、氣浮濃縮法、離心濃縮法。
本發明實施例中上述的一個或多個技術方案,至少具有如下技術效果或優點:
本發明實施例提供的連續式處理污泥脫水設備,通過設置濃縮池,將污泥先送入到濃縮池進行濃縮,對污泥進行初步脫水,減少污泥的體積,以便于后續處理。污泥經過濃縮池濃縮后,通過管道泵送至污泥調理池內,先向污泥調理池內添加足量堿性物質(具體可為氧化鈣粉末或氫氧化鈣溶液),利用堿性物質和污泥中的酸性物質進行酸堿中和反應,進而去除污泥中的酸性物質。而后向污泥內添加足量鐵鹽,由于鐵鹽會和多余的堿性物質反應,進而去除多余的堿性物質,使得污泥趨于中性。而后將完成調理的污泥泵送至高壓彈性壓榨機內進行進一步的脫水處理。進而實現對污泥連續脫水處理,并且對污泥進行調理,將污泥調節為中性,大幅度降低污泥的腐蝕性,使得處理后的污泥更加環保。
(發明人:郭永翔;柴斐斐;楊琦)






