申請日2013.09.23
公開(公告)日2014.04.16
IPC分類號B01D21/24
摘要
本實用新型涉及冶金污水處理領域,尤其涉及一種轉爐用污水抽取反沖洗裝置,包括污水泵和分別與污水泵兩端相連的出水管和進水管;出水管出水口處設有反洗吸水管,反洗吸水管一端與出水管相連,另一端延伸至進水管進水口處;反洗吸水管出水口處設有多個噴頭。本實用新型污水處理裝置在出水管上增設有反洗吸水管,可使用抽到出水管內的污水反向進入沉淀池內部,并通過反洗吸水管周圍的多個噴頭在噴水壓力下沖刷并攪動周邊污泥,從而使污泥和污水混合后被污水泵吸走,從而減少了沉淀池內污泥的堆積,提高污水泵的抽取效率;且采用抽出的污水進行反沖洗,無需采用清水或壓縮空氣對污泥池進行攪拌,避免了水資源、壓縮空氣的浪費,具有節能效果和利用自身水流工作簡單方便作用。
權利要求書
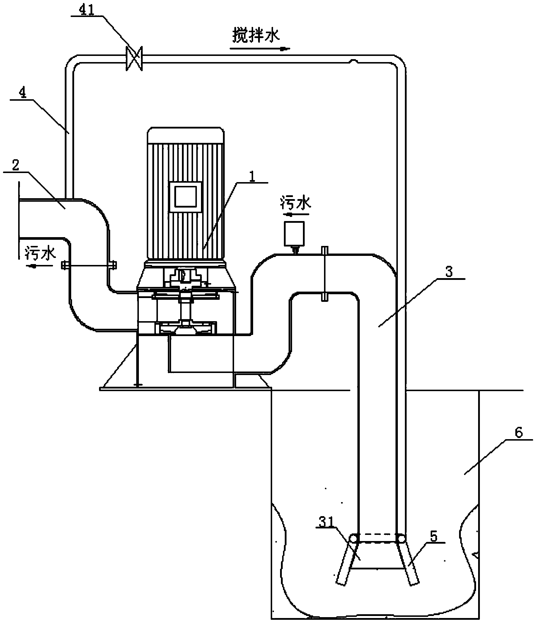
1.一種污水抽取反沖洗裝置,包括污水泵(1)和分別與污水泵(1) 兩端相連的出水管(2)和進水管(3);其特征在于:所述出水管(2)出 水口處設有反洗吸水管(4),所述反洗吸水管(4)一端與出水管(1)相 連,另一端延伸至進水管(3)進水口處;所述反洗吸水管(4)出水口處 設有多個噴頭(5)。
2.根據權利要求1所述的污水抽取反沖洗裝置,其特征在于:所述反 洗吸水管(4)上還設有反水閥(41)。
3.根據權利要求1所述的污水抽取反沖洗裝置,其特征在于:所述反 洗吸水管(4)下端環繞在進水管(3)進水口上部,所述多個噴頭(5)均 布在環繞在進水管(3)上的反洗吸水管(4)上。
4.根據權利要求1所述的污水抽取反沖洗裝置,其特征在于:所述噴 頭(5)有3~7個,所述3~7個噴頭(5)均勻分布在進水管(3)進水口外 部。
5.根據權利要求4所述的污水抽取反沖洗裝置,其特征在于:所述噴 頭(5)有5個。
6.根據權利要求1~5任一項權利要求所述的污水抽取反沖洗裝置,其 特征在于:所述進水管(3)一端與污水泵(1)相連,另一端延伸至盛有 污水的沉淀池(6)底部。
7.根據權利要求1~5任一項權利要求所述的污水抽取反沖洗裝置,其 特征在于:所述進水管(3)下端設有喇叭口(31),所述噴頭(5)長度大 于喇叭口(31)的長度。
8.根據權利要求1~5任一項權利要求所述的污水抽取反沖洗裝置,其 特征在于:所述反洗吸水管(4)規格為DN30、DN50、DN65或DN80。
說明書
一種污水抽取反沖洗裝置
技術領域
本實用新型涉及冶金污水處理領域,尤其涉及一種轉爐用污水抽取反 沖洗裝置。
背景技術
轉爐是冶金領域中常見的冶煉爐,隨著鋼產量的逐年增加,尤其是年 產達到百萬噸后,污水污泥處理處理問題日益突出。目前鋼廠的轉爐除塵 污泥在壓濾過程中,有部分污水流入沉淀池,需定期把該部分污水通過污 水泵抽取到斜板深沉池或壓濾機。由于該部分污水含污泥量大,沉淀池內 污水隨著時間的延長,污泥越積越多,長時間積累會阻塞污水泵進水管, 直至污泥將沉淀池完全填滿,影響水泵的正常運行,降低抽取效率,從而 影響其他生產環節的進度,造成鋼鐵生產效率的低下;嚴重時還會燒毀電 機,嚴重影響污水泵的使用壽命,增加了生產成本,降低了企業的經濟效 益。而采用人工清除污泥,清除時間長,又增加了勞動成本,還會提高工 人的勞動強度,降低了生產的自動化程度。
實用新型內容
本實用新型的目的是克服現有技術存在的缺陷,提供一種可自動、 快速抽取污水的轉爐用污水抽取反沖洗裝置。
實現本實用新型目的的技術方案是:一種污水抽取反沖洗裝置,包括 污水泵和分別與污水泵兩端相連的出水管和進水管;所述出水管出水口處 設有反洗吸水管,所述反洗吸水管一端與出水管相連,另一端延伸至進水 管進水口處;所述反洗吸水管出水口處設有多個噴頭。
上述技術方案,所述反洗吸水管上還設有反水閥。
上述技術方案,所述反洗吸水管下端環繞在進水管進水口上部,所述 多個噴頭均布在環繞在進水管上的反洗吸水管上。
上述技術方案,所述噴頭有3~7個,所述3~7個噴頭均勻分布在進水 管進水口外部。
上述技術方案,所述噴頭有5個。
上述技術方案,所述進水管一端與污水泵相連,另一端延伸至盛有污 水的沉淀池底部。
上述技術方案,所述進水管下端設有喇叭口,所述噴頭長度大于喇叭 口的長度。
上述技術方案,所述反洗吸水管規格為DN30、DN50、DN65或DN80。
采用上述技術方案后,本實用新型具有以下積極的效果:
(1)本實用新型污水處理裝置在出水管上增設有反洗吸水管,可使用 抽到出水管內的污水反向進入沉淀池內部,并通過反洗吸水管周圍的多個 噴頭在噴水壓力下沖刷并攪動周邊污泥,從而使污泥和污水混合后被污水 泵吸走,從而減少了沉淀池內污泥的堆積,提高污水泵的使用壽命和污水 的抽取效率;且采用抽出的污水進行反沖洗,無需采用清水或壓縮空氣對 污泥進行沖刷,避免了水資源、壓縮空氣的浪費,節約能源和簡單易安裝;
(2)本實用新型反洗吸水管上還設有反水閥,可方便控制反洗時間, 從而可根據污泥實際堆積情況進行反洗,即能達到及時沖洗的目的,還可 在污泥不需要沖洗的時候關閉閥門,達到節能減耗目的;
(3)本實用新型進水管下端為喇叭形開口,可提高與污泥和污水的接 觸面積,從而提高污泥和污水的抽取效率;且噴頭的長度長與喇叭口長度, 進一步加強了底部污泥的攪拌效果;
(4)本實用新型反洗吸水管規格可根據實際情況進行選擇,從而滿足 生產中的多樣化需求;
(5)本實用新型結構簡單、設計巧妙、操作方便,改造成本低,可廣 泛應用于各領域中含有較多沉積固定顆粒的污水處理。







