公布日:2023.06.13
申請日:2023.01.28
分類號:C02F9/00(2023.01)I;C02F11/04(2006.01)I;C02F3/10(2023.01)I;C02F3/28(2023.01)I;C02F1/40(2023.01)I;C02F101/32(2006.01)N
摘要
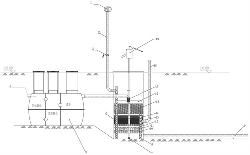
本發明公開了無動力分戶式污水處理裝置,涉及污水處理技術領域,包括三格化糞池,所述三格化糞池的進水口與接自來水收集管的一端連接,所述三格化糞池的出水口與導水管的一端連接,導水管的另一端伸入中水管內且與核桃殼除油罐的進水口連接,所述核桃殼除油罐的出水口與布水管的進水口連接,中水管內位于布水管下方的位置依次設置有PVC螺旋型充氧填料層、10ppi聚氨酯海綿填料層、60ppi聚氨酯海綿填料層、10ppi聚氨酯海綿填料層和30ppiPVC填料層,本發明所有工藝單元均采用人工操作,操作便利沒有復雜結構,解決了除油及污泥清理問題,同時合理布置工藝單元,出水水質滿足規范要求,設備運行不消耗動力和藥劑,節省運行費用,更易于應用推廣。

權利要求書
1.一種無動力分戶式污水處理裝置,包括三格化糞池(5),其特征在于:所述三格化糞池(5)的進水口與接自來水收集管(4)的一端連接,所述三格化糞池(5)的出水口與導水管的一端連接,導水管的另一端伸入中水管內且與核桃殼除油罐(17)的進水口連接,所述核桃殼除油罐(17)的出水口與布水管(16)的進水口連接,所述布水管(16)設置于中水管內,中水管內位于布水管(16)下方的位置依次設置有PVC螺旋型充氧填料層(15)、第二10ppi聚氨酯海綿填料層(14)、60ppi聚氨酯海綿填料層(13)、第一10ppi聚氨酯海綿填料層(11)和30ppiPVC填料層(10),中水管內位于(30)ppiPVC填料層(10)下方的位置設置有集水槽,中水管內豎向設置有出風花管(6)和進風花管(12),所述出風花管(6)和進風花管(12)底端均通過管道卡槽(8)固定安裝在中水管內側底部,集水槽的出水口與中水排水管(9)的一端連接。
2.根據權利要求1所述的無動力分戶式污水處理裝置,其特征在于:所述三格化糞池(5)埋設于地面之下,所述三格化糞池(5)頂部開設有進料口,進料口頂端與地面齊平且設置有密封蓋。
3.根據權利要求1所述的無動力分戶式污水處理裝置,其特征在于:所述中水管埋設于地面之下,中水管頂端與地面齊平且設置有密封蓋。
4.根據權利要求1所述的無動力分戶式污水處理裝置,其特征在于:所述中水管內豎向設置有排泥管,排泥管底端設置于中水管內側底部且開設有吸泥孔(7),排泥管頂端伸出中水管且與手動排泥裝置(19)的進泥口連接。
5.根據權利要求1所述的無動力分戶式污水處理裝置,其特征在于:所述出風花管(6)豎向貫穿PVC螺旋型充氧填料層(15)、第二10ppi聚氨酯海綿填料層(14)、60ppi聚氨酯海綿填料層(13)、第一10ppi聚氨酯海綿填料層(11)和30ppiPVC填料層(10),所述出風花管(6)頂端固定連接有出風管(2)底端,所述出風管(2)底端與出風花管(6)內部連通,所述出風管(2)的頂端伸出地面且固定安裝有無動力風機(1),所述出風管(2)上安裝有風量調節閥(3)。
6.根據權利要求1所述的無動力分戶式污水處理裝置,其特征在于:所述進風花管(12)豎向貫穿第二10ppi聚氨酯海綿填料層(14)、60ppi聚氨酯海綿填料層(13)、第一10ppi聚氨酯海綿填料層(11)和30ppiPVC填料層(10),所述進風花管(12)外側固定連接有進風管(18)的底端,所述進風管(18)的頂端伸出地面。
7.根據權利要求1所述的無動力分戶式污水處理裝置,其特征在于:所述核桃殼除油罐(17)內部裝有核桃殼濾料。
8.根據權利要求1所述的無動力分戶式污水處理裝置,其特征在于:所述無動力風機(1)為Ø300無動力風球。
發明內容
本發明的目的在于提供無動力分戶式污水處理裝置,以解決上述背景技術中提出的問題。
為實現上述目的,本發明提供如下技術方案:
無動力分戶式污水處理裝置,包括三格化糞池,所述三格化糞池的進水口與接自來水收集管的一端連接,所述三格化糞池的出水口與導水管的一端連接,導水管的另一端伸入中水管內且與核桃殼除油罐的進水口連接,所述核桃殼除油罐的出水口與布水管的進水口連接,所述布水管設置于中水管內,中水管內位于布水管下方的位置依次設置有PVC螺旋型充氧填料層、10ppi聚氨酯海綿填料層、60ppi聚氨酯海綿填料層、10ppi聚氨酯海綿填料層和30ppiPVC填料層,中水管內位于30ppiPVC填料層下方的位置設置有集水槽,中水管內豎向設置有出風花管和進風花管,所述出風花管和進風花管底端均通過管道卡槽固定安裝在中水管內側底部,集水槽的出水口與中水排水管的一端連接。
作為本發明進一步的方案:所述三格化糞池埋設于地面之下,所述三格化糞池頂部開設有進料口,進料口頂端與地面齊平且設置有密封蓋。
作為本發明再進一步的方案:所述中水管埋設于地面之下,中水管頂端與地面齊平且設置有密封蓋。
作為本發明再進一步的方案:所述中水管內豎向設置有排泥管,排泥管底端設置于中水管內側底部且開設有吸泥孔,排泥管頂端伸出中水管且與手動排泥裝置的進泥口連接。
作為本發明再進一步的方案:所述出風花管豎向貫穿PVC螺旋型充氧填料層、第二10ppi聚氨酯海綿填料層、60ppi聚氨酯海綿填料層、第一10ppi聚氨酯海綿填料層和30ppiPVC填料層,所述出風花管頂端固定連接有出風管底端,所述出風管底端與出風花管內部連通,所述出風管的頂端伸出地面且固定安裝有無動力風機,所述出風管上安裝有風量調節閥。
作為本發明再進一步的方案:所述進風花管豎向貫穿第二10ppi聚氨酯海綿填料層、60ppi聚氨酯海綿填料層、第一10ppi聚氨酯海綿填料層和30ppiPVC填料層,所述進風花管外側固定連接有進風管的底端,所述進風管的頂端伸出地面
作為本發明再進一步的方案:所述核桃殼除油罐內部裝有核桃殼濾料。
作為本發明再進一步的方案:所述無動力風機為Ø300無動力風球。
與現有技術相比,本發明的有益效果是:
本發明所有工藝單元均采用人工操作,操作便利沒有復雜結構,解決了除油及污泥清理問題,同時合理布置工藝單元,出水水質滿足規范要求,設備運行不消耗動力和藥劑,節省運行費用,更易于應用推廣。
(發明人:田文杰;馬莉達;張琳琳;劉海燕;李潔;高可可;葉松)






