公布日:2023.12.22
申請日:2023.11.07
分類號:C02F9/00(2023.01)I;C02F1/00(2023.01)N;C02F1/04(2023.01)N;C02F1/26(2023.01)N;C02F101/16(2006.01)N;C02F101/34(2006.01)N
摘要
本發明公開了處理廢水中含有的氨氮污染物的處理裝備,包括:設備安裝板,設備安裝板上安裝有液化分離罐,液化分離罐安裝在設備安裝板上壁面左側位置,液化分離罐內安裝有冷熱水分離結構,設備安裝板上還安裝有凈化萃取結構,凈化萃取結構與液化分離罐相連接;本發明涉及酚氨廢水處理設備技術領域,本案的有益效果為:解決了現有的含酚廢水多是直接回收進行中和無害化處理,無害化處理步驟繁瑣,操作非常麻煩,同時排出的液體易對人體造成傷害,而酚類物質作為可制造染料、藥物、酚醛樹脂、膠粘劑的重要的化工原料,直接無害化處理會造成大量的資源浪費,無法實現資源化處理的問題。

權利要求書
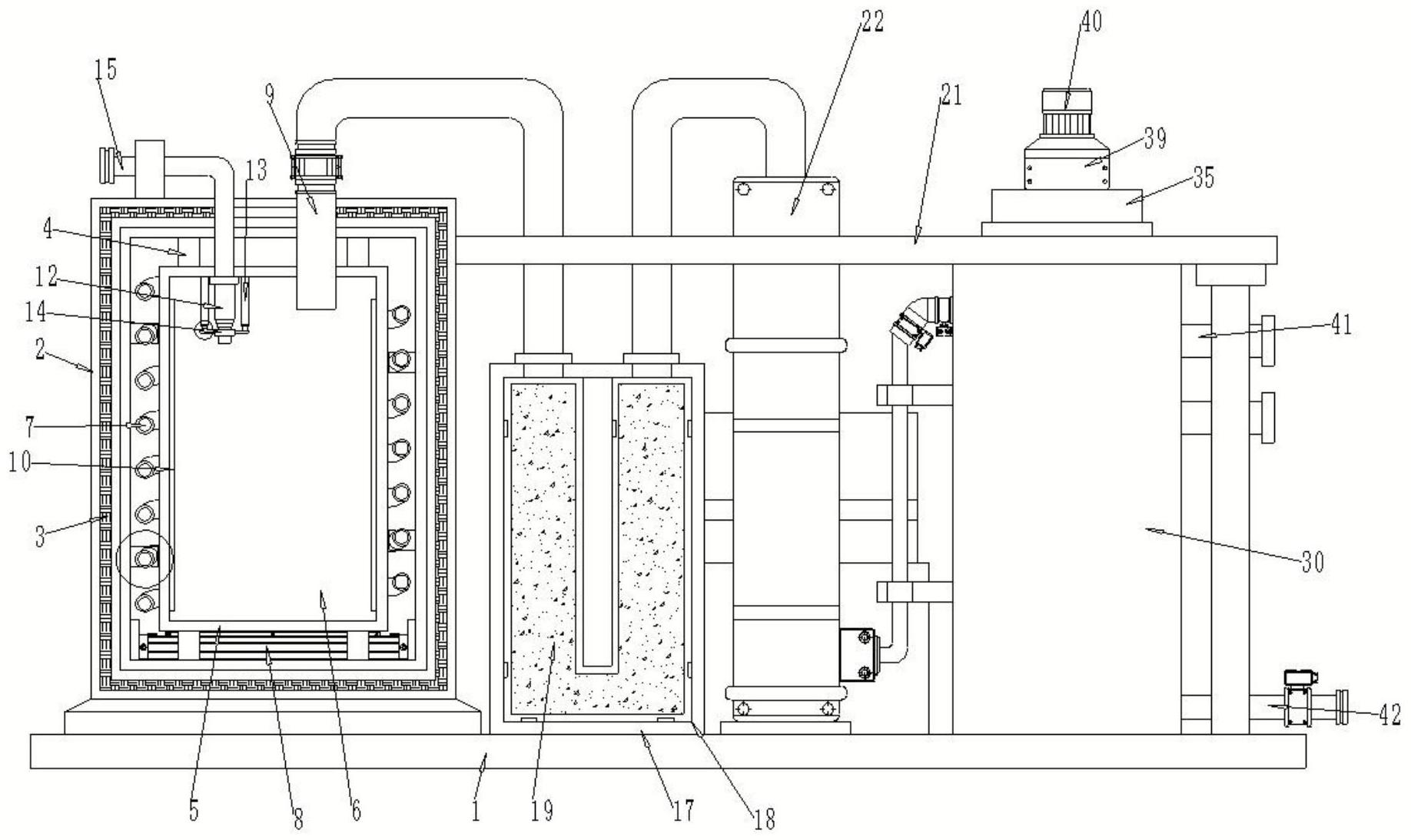
1.處理廢水中含有的氨氮污染物的處理裝備,包括:設備安裝板(1),其特征在于,設備安裝板(1)上安裝有液化分離罐(2),液化分離罐(2)安裝在設備安裝板(1)上壁面左側位置,液化分離罐(2)內安裝有冷熱水分離結構,設備安裝板(1)上還安裝有凈化萃取結構,凈化萃取結構與液化分離罐(2)相連接;冷熱水分離結構包含有:隔熱腔(3)、若干安裝桿(4)、分離內箱(5)、分離腔(6)、冷卻盤管(7)、蒸發加熱器(8)、排放管(9)、一對液位傳感器(10)以及抽吸組件;隔熱腔(3)開設在液化分離罐(2)壁面內部,若干安裝桿(4)安裝在液化分離罐(2)內壁面上,分離內箱(5)通過若干安裝桿(4)安裝在液化分離罐(2)內部,分離腔(6)開設在分離內箱(5)內部,冷卻盤管(7)安裝在分離內箱(5)外壁面與液化分離罐(2)內壁面中間空腔位置,蒸發加熱器(8)安裝在分離內箱(5)下方位置,排放管(9)貫穿液化分離罐(2)安裝在分離內箱(5)排放口上,一對液位傳感器(10)安裝在分離內箱(5)內兩側壁面上,抽吸組件安裝在液化分離罐(2)以及分離內箱(5)上。
2.根據權利要求1所述的處理廢水中含有的氨氮污染物的處理裝備,其特征在于,冷卻盤管(7)通過固定架(11)安裝在液化分離罐(2)內壁面上。
3.根據權利要求1所述的處理廢水中含有的氨氮污染物的處理裝備,其特征在于,抽吸組件包含有:多級伸縮抽吸管(12)、一對液壓伸縮桿(13)、固定套(14)以及排水管(15);多級伸縮抽吸管(12)嵌裝在分離內箱(5)排液口上,一對液壓伸縮桿(13)安裝在多級伸縮抽吸管(12)兩側位置,固定套(14)安裝在多級伸縮抽吸管(12)管口位置,一對液壓伸縮桿(13)輸出端安裝在固定套(14)上,排水管(15)安裝在液化分離罐(2)上壁面上,排油管(15)下端貫穿液化分離罐(2)安裝在多級伸縮抽吸管(12)上。
4.根據權利要求3所述的處理廢水中污染物的處理裝備,其特征在于,液壓伸縮桿(13)通過固定塊(16)安裝在固定套(14)上。
5.根據權利要求1所述的處理廢水中含有的氨氮污染物的處理裝備,其特征在于,凈化萃取結構包含有:過濾凈化裝置(17)、過濾內腔(18)、過濾填料架(19)、密封箱板(20)、結構支撐架(21)、冷卻液化組件以及混合萃取提純組件;過濾凈化裝置(17)安裝在液化分離罐(2)右側位置,過濾內腔(18)開設在過濾凈化裝置(17)內部,過濾填料架(19)安裝在過濾內腔(18)中,密封箱板(20)安裝在過濾凈化裝置(17)前開口位置,結構支撐架(21)安裝在設備安裝板(1)上壁面上,結構支撐架(21)左端與液化分離罐(2)相連接,冷卻液化組件以及混合萃取提純組件安裝在結構支撐架(21)上,冷卻液化組件安裝在過濾凈化裝置(17)右側位置,冷卻液化組件與過濾凈化裝置(17)相連接,混合萃取提純組件安裝在冷卻液化組件右側,混合萃取提純組件與冷卻液化組件相連接。
6.根據權利要求5所述的處理廢水中含有的氨氮污染物的處理裝備,其特征在于,過濾內腔(18)為U形結構。
7.根據權利要求5所述的處理廢水中含有的氨氮污染物的處理裝備,其特征在于,冷卻液化組件包含有:液化外管(22)、安裝腔(23)、液化內管(24)、循環冷凝管(25)、冷卻水儲存倉(26)、循環水泵(27)、循環水箱(28)以及一對半導體制冷器(29);液化外管(22)安裝在過濾凈化裝置(17)右側,安裝腔(23)開設在液化外管(22)內部,液化內管(24)安裝在安裝腔(23)中間位置,循環冷凝管(25)環繞安裝在液化內管(24)外壁面上,循環冷凝管(25)上下兩端貫穿液化外管(22)伸出,冷卻水儲存倉(26)安裝在液化外管(22)后方位置,循環水泵(27)安裝在冷卻水儲存倉(26)出水口上,循環水箱(28)安裝在冷卻水儲存倉(26)上方,循環水箱(28)與冷卻水儲存倉(26)相連接,一對半導體制冷器(29)嵌裝在循環水箱(28)上,循環冷凝管(25)上下兩端分別安裝在循環水箱(28)以及循環水泵(27)上。
8.根據權利要求7所述的處理廢水中含有的氨氮污染物的處理裝備,其特征在于,混合萃取提純組件包含有:提純罐(30)、混合提純腔(31)、兩對軸承(32)、一對旋轉軸(33)、一對混合攪拌架(34)、傳動箱(35)、一對第一齒輪(36)、驅動軸(37)、第二齒輪(38)、減速齒輪箱(39)、驅動電機(40)、一對注料管(41)以及排料管(42);提純罐(30)安裝在液化外管(22)右側位置,混合提純腔(31)開設在提純罐(30)內部,兩對軸承(32)嵌裝在混合提純腔(31)上下壁面兩側位置,一對旋轉軸(33)嵌裝在兩對軸承(32)內,一對混合攪拌架(34)安裝在一對旋轉軸(33)上,傳動箱(35)安裝在提純罐(30)頂部位置,一對旋轉軸(33)頂端貫穿混合提純腔(31)伸出,一對第一齒輪(36)安裝在一對旋轉軸(33)頂端位置,驅動軸(37)嵌裝在傳動箱(35)中間位置,第二齒輪(38)安裝在驅動軸(37)上,第二齒輪(38)與一對第一齒輪(36)相嚙合,減速齒輪箱(39)安裝在傳動箱(35)上方,驅動軸(37)與減速齒輪箱(39)輸出端相連接,驅動電機(40)安裝在減速齒輪箱(39)上,驅動電機(40)輸出端與減速齒輪箱(39)輸入端相連接,一對注料管(41)嵌裝在提純罐(30)右側壁面靠上位置,排料管(42)嵌裝在提純罐(30)右側壁面靠下位置。
9.應用于處理廢水中污染物的處理裝備的使用方法,其特征在于,步驟如下:S1、將廢水進行冷卻使液類物質析出并分離,分離后進行加熱使廢水液化排出;S2、對廢水汽化后的液體進行凈化過濾,將氣體中殘留的液類物質以及含有的其余液體進行過濾,對液化后的液體進行凈化;S3、將凈化后的液體輸送到冷凝設備中,通過循環的熱交換將液體冷凝為液體,便于后續的萃取提純;S4、冷凝液化后的液體輸送到萃取提純設備中,并在其中加入乙酸乙酯、異丙醚等萃取溶劑,同時加入甲基異丁基酮、醋酸丁酯、二異丙醚、芳烴類的助溶劑以及稀釋劑,并加以攪拌加快萃取提純的速度。
發明內容
為實現以上目的,本發明通過以下技術方案予以實現:處理廢水中含有的氨氮污染物的處理裝備,包括:設備安裝板,設備安裝板上安裝有液化分離罐,液化分離罐安裝在設備安裝板上壁面左側位置,液化分離罐內安裝有冷熱液分離結構,設備安裝板上還安裝有凈化萃取結構,凈化萃取結構與液化分離罐相連接;
冷熱液分離結構包含有:隔熱腔、若干安裝桿、分離內箱、分離腔、冷卻盤管、蒸發加熱器、排放管、一對液位傳感器以及抽吸組件;
隔熱腔開設在液化分離罐壁面內部,若干安裝桿安裝在液化分離罐內壁面上,分離內箱通過若干安裝桿安裝在液化分離罐內部,分離腔開設在分離內箱內部,冷卻盤管安裝在分離內箱外壁面與液化分離罐內壁面中間空腔位置,蒸發加熱器安裝在分離內箱下方位置,排放管貫穿液化分離罐安裝在分離內箱排放口上,一對液位傳感器安裝在分離內箱內兩側壁面上,抽吸組件安裝在液化分離罐以及分離內箱上。
優選的,冷卻盤管通過固定架安裝在液化分離罐內壁面上。
優選的,抽吸組件包含有:多級伸縮抽吸管、一對液壓伸縮桿、固定套以及排液管;
多級伸縮抽吸管嵌裝在分離內箱排液口上,一對液壓伸縮桿安裝在多級伸縮抽吸管兩側位置,固定套安裝在多級伸縮抽吸管管口位置,一對液壓伸縮桿輸出端安裝在固定套上,排液管安裝在液化分離罐上壁面上,排液管下端貫穿液化分離罐安裝在多級伸縮抽吸管上。
優選的,液壓伸縮桿通過固定塊安裝在固定套上。
優選的,凈化萃取結構包含有:過濾凈化裝置、過濾內腔、過濾填料架、密封箱板、結構支撐架、冷卻液化組件以及混合萃取提純組件;
過濾凈化箱安裝在也化分離罐右側位置,過濾內腔開設在過濾凈化箱內部,過濾填料架安裝在過濾內腔中,密封箱板安裝在過濾凈化箱前開口位置,結構支撐架安裝在設備安裝板上壁面上,結構支撐架左端與液化分離罐相連接,冷卻液化組件以及混合萃取提純組件安裝在結構支撐架上,冷卻液化組件安裝在過濾凈化裝置右側位置,冷卻液化組件與過濾凈化裝置相連接,混合萃取提純組件安裝在冷卻液化組件右側,混合萃取提純組件與冷卻液化組件相連接。
優選的,過濾內腔為U形結構。
優選的,冷卻液化組件包含有:液化外管、安裝腔、液化內管、循環冷凝管、冷卻水儲存箱、循環水泵、循環水箱以及一對半導體制冷器;
液化外管安裝在過濾凈化箱右側,安裝腔開設在液化外管內部,液化內管安裝在安裝腔中間位置,循環冷凝管環繞安裝在液化內管外壁面上,循環冷凝管上下兩端貫穿液化外管伸出,冷卻水儲存箱安裝在液化外管后方位置,循環水泵安裝在冷卻水儲存箱出水口上,循環水箱安裝在冷卻水儲存箱上方,循環水箱與冷卻水儲存箱相連接,一對半導體制冷器嵌裝在循環水箱上,循環冷凝管上下兩端分別安裝在循環水箱以及循環水泵上。
優選的,混合萃取提純組件包含有:提純罐、混合提純腔、兩對軸承、一對旋轉軸、一對混合攪拌架、傳動箱、一對第一齒輪、驅動軸、第二齒輪、減速齒輪箱、驅動電機、一對注料管以及排料管;
提純罐安裝在液化外管右側位置,混合提純腔開設在提純罐內部,兩對軸承嵌裝在混合提純腔上下壁面兩側位置,一對旋轉軸嵌裝在兩對軸承內,一對混合攪拌架安裝在一對旋轉軸上,傳動箱安裝在提純罐頂部位置,一對旋轉軸頂端貫穿混合提純腔伸出,一對第一齒輪安裝在一對旋轉軸頂端位置,驅動軸嵌裝在傳動箱中間位置,第二齒輪安裝在驅動軸上,第二齒輪與一對第一齒輪相嚙合,減速齒輪箱安裝在傳動箱上方,驅動軸與減速齒輪箱輸出端相連接,驅動電機安裝在減速齒輪箱上,驅動電機輸出端與減速齒輪箱輸入端相連接,一對注料管嵌裝在提純罐右側壁面靠上位置,排料管嵌裝在提純罐右側壁面靠下位置。
應用于處理廢水中含有的氨氮污染物的處理裝備的使用方法,步驟如下:
S1、將廢水進行冷卻使油類物質析出并分離,分離后進行加熱使廢水液化排出;
S2、對廢水液化后的液體進行凈化過濾,將液體中殘留的雜質類物質以及含有的其余液體進行過濾,例如CO2/H2S、氨和揮發性有機物,對液化后的氣體進行凈化;
S3、將凈化后的液體輸送到冷凝設備中,通過循環的熱交換將液體冷凝為液體,便于后續的萃取提純;
S4、冷凝液化后的液體輸送到萃取提純設備中,并在其中加入乙酸乙酯、異丙醚等萃取溶劑,同時加入甲基異丁基酮、醋酸丁酯、二異丙醚、芳烴類的助溶劑以及稀釋劑,并加以攪拌加快萃取提純的速度。
有益效果
本發明提供了處理廢水中含有的氨氮污染物的處理裝備,具備以下有益效果:本方案使用了一體化的處理結構,有效的對酚氨廢水進行凈化處理的,將廢水中的酚類物質進行提純,實現資源化處理,將酚氨廢水進行再生利用,實現了全自動密封處理,通過液化過濾凈化后再冷凝萃取的方式增加提純保有率,增加酚類物質的提純效果,解決了現有的含酚廢水多是直接回收進行中和無害化處理,無害化處理步驟繁瑣,操作非常麻煩,同時揮發的液體易對人體造成傷害,而酚類物質作為可制造染料、藥物、酚醛樹脂、膠粘劑的重要的化工原料,直接無害化處理會造成大量的資源浪費,無法實現資源化處理的問題。
(發明人:陶莉;許寶建;李雅;周恩朋;王啟偉;許海青)






