公布日:2023.04.14
申請日:2021.11.25
分類號:C02F3/30(2006.01)I;C02F3/00(2006.01)I;C02F101/16(2006.01)N;C02F101/32(2006.01)N;C02F101/34(2006.01)N
摘要
一種吸附聯合電活性生物膜的處理裝置及利用該裝置處理煤熱解廢水中酚氨污染物的方法,涉及污水處理技術領域。本發明的目的是要解決現有技術中生化降解酚氨污染物同步脫除困難,常規缺氧-好氧單元操作復雜,穩定性低、能耗高,并且二沉池利用率低的問題。方法:煤熱解廢水經A池沸石吸附快速去除大部分氨氮,形成生物膜可進一步硝化、反硝化脫氮;經B池nano-Fe3O4負載活性焦顆粒吸附可快速削減酚類、多環芳烴等難降解有機物,并通過積累、馴化的電活性生物膜降解吸附的有機污染物;經C池斜板沉淀區后出水,可降低出水濁度與SS。本發明可獲得一種吸附聯合電活性生物膜的處理裝置及利用該裝置處理煤熱解廢水中酚氨污染物的方法。

權利要求書
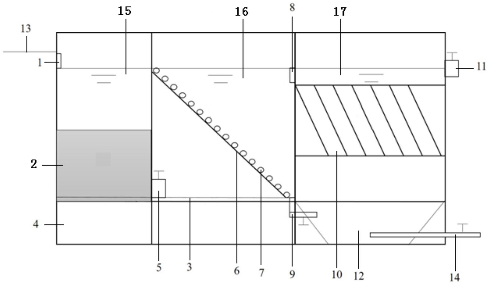
1.一種吸附聯合電活性生物膜的處理裝置,位于地面(13)以下,為半地下式組合結構,其特征在于所述處理裝置包括A池(15)、吸附-生物降解池(16)和C池(17),所述的A池(15)由A池進水管(1)、沸石濾料(2)、承托層(4)和A池出水管(5)組成,所述的吸附-生物降解池(16)由承托層(4)、不銹鋼柵格鋼斜板(6)、nano-Fe3O4負載活性焦顆粒(7)、B池溢流堰(8)和污泥管(9)組成,所述的C池(17)由斜板填料(10)、C池出水管(11)、污泥斗(12)和排泥管(14)組成;所述的A池(15)的底部設置有承托層(4),A池(15)的上部設置有A池進水管(1),A池(15)內填充有沸石濾料(2),A池(15)的下部設置有A池出水管(5),A池(15)通過A池出水管(5)與吸附-生物降解池(16)連通;所述的吸附-生物降解池(16)的底部設置有承托層(4),吸附-生物降解池(16)內傾斜設置有不銹鋼柵格鋼斜板(6),所述的不銹鋼柵格鋼斜板(6)的一端抵在臨近A池(15)一側的吸附-生物降解池(16)的頂部,不銹鋼柵格鋼斜板(6)的另一端抵在臨近C池(17)一側的承托層(4)的頂部,不銹鋼柵格鋼斜板(6)上均布有nano-Fe3O4負載活性焦顆粒,吸附-生物降解池(16)的上部設置有B池溢流堰(8),吸附-生物降解池(16)的下部設置有污泥管(9);所述的A池(15)和吸附-生物降解池(16)的底部設置有反沖洗管(3),所述的反沖洗管(3)通過管路與動力裝置連通,A池(15)與吸附-生物降解池(16)之間的反沖洗管(3)上設有閥門;所述的C池(17)的上部設置有C池出水管(11),C池(17)內設置有斜板填料(10),所述的斜板填料(10)上設有活性焦,C池(17)的底部設置有污泥斗(12),吸附-生物降解池(16)通過污泥管(9)與污泥斗(12)連通,污泥斗(12)的下部設置有排泥管(14),所述的排泥管(14)通向C池(17)的外部。
2.根據權利要求1所述的一種吸附聯合電活性生物膜的處理裝置,其特征在于所述的沸石濾料(2)為斜發沸石,粒徑為3~5cm,斜發沸石設置在A池(15)內1/2水深處至承托層(4)之間。
3.根據權利要求1所述的一種吸附聯合電活性生物膜的處理裝置,其特征在于所述的nano-Fe3O4負載活性焦顆粒(7)按以下步驟制備:先對活性焦進行篩分,得到粒徑為1~3cm的活性焦顆粒;將活性焦顆粒、三氯化鐵和硫酸亞鐵加入到經氮氣曝氣飽和的無氧水中,然后在氮氣氛圍下加熱至50℃,并以120r/min的攪拌速度攪拌12h,再加入150mL、15mol/L氨水,在氮氣氛圍下加熱至60℃,并振蕩24h,最后通過磁傾析,得到nano-Fe3O4負載活性焦顆粒(7),所述的活性焦顆粒與三氯化鐵的質量比為1:6,活性焦顆粒與硫酸亞鐵的質量比為1:5。
4.根據權利要求1所述的一種吸附聯合電活性生物膜的處理裝置,其特征在于所述的動力裝置為反沖洗水泵、鼓風機或氣罐。
5.利用如權利要求1所述的一種吸附聯合電活性生物膜的處理裝置處理煤熱解廢水中酚氨污染物的方法,其特征在于該方法按以下步驟進行:將煤熱解廢水厭氧單元出水經A池進水管(1)加入到A池(15)中,經過沸石濾料(2)的吸附后,得到一級出水;一級出水經A池出水管(5)進入到吸附-生物降解池(16)中,透過不銹鋼柵格鋼斜板(6)并經過nano-Fe3O4負載活性焦顆粒(7)的吸附后,得到二級出水;二級出水經B池溢流堰(8)進入到C池(17),經過斜板填料(10)的分離后,通過C池出水管(11)排出,完成處理煤熱解廢水中酚氨污染物;吸附-生物降解池(16)內的污泥和從不銹鋼柵格鋼斜板(6)上脫落的nano-Fe3O4負載活性焦顆粒(7)經污泥管(9)流入污泥斗(12)內,C池(17)內的污泥和斜板填料(10)上脫落的失效活性焦落入污泥斗(12)內,定期將污泥斗(12)內的所有內容物經排泥管(14)排向C池(17)的外部。
6.根據權利要求5所述的利用一種吸附聯合電活性生物膜的處理裝置處理煤熱解廢水中酚氨污染物的方法,其特征在于所述的沸石濾料(2)為斜發沸石,粒徑為3~5cm,斜發沸石設置在A池(15)內1/2水深處至承托層(4)之間。
7.根據權利要求5所述的利用一種吸附聯合電活性生物膜的處理裝置處理煤熱解廢水中酚氨污染物的方法,其特征在于所述的nano-Fe3O4負載活性焦顆粒(7)按以下步驟制備:先對活性焦進行篩分,得到粒徑為1~3cm的活性焦顆粒;將活性焦顆粒、三氯化鐵和硫酸亞鐵加入到經氮氣曝氣飽和的無氧水中,然后在氮氣氛圍下加熱至50℃,并以120r/min的攪拌速度攪拌12h,再加入150mL、15mol/L氨水,在氮氣氛圍下加熱至60℃,并振蕩24h,最后通過磁傾析,得到nano-Fe3O4負載活性焦顆粒(7),所述的活性焦顆粒與三氯化鐵的質量比為1:6,活性焦顆粒與硫酸亞鐵的質量比為1:5。
8.根據權利要求5所述的利用一種吸附聯合電活性生物膜的處理裝置處理煤熱解廢水中酚氨污染物的方法,其特征在于定期利用反沖洗管(3)對A池(15)內的沸石濾料(2)和吸附-生物降解池(16)內的斜板填料(10)進行反沖洗。
9.根據權利要求8所述的利用一種吸附聯合電活性生物膜的處理裝置處理煤熱解廢水中酚氨污染物的方法,其特征在于反沖洗時采用的動力裝置為反沖洗水泵、鼓風機或氣罐。
10.根據權利要求5所述的利用一種吸附聯合電活性生物膜的處理裝置處理煤熱解廢水中酚氨污染物的方法,其特征在于所述的斜板填料(10)為蜂窩填料。
發明內容
本發明的目的是為了解決傳統的煤熱解廢水生物降解工藝中存在的上述技術問題,而提供一種吸附聯合電活性生物膜的處理裝置及利用該裝置處理煤熱解廢水中酚氨污染物的方法。
一種吸附聯合電活性生物膜的處理裝置,位于地面以下,為半地下式組合結構,所述處理裝置包括A池、吸附-生物降解池(B池)和C池,所述的A池由A池進水管、沸石濾料、承托層和A池出水管組成,所述的吸附-生物降解池由承托層、不銹鋼柵格鋼斜板、nano-Fe3O4負載活性焦顆粒、B池溢流堰和污泥管組成,所述的C池由斜板填料、C池出水管、污泥斗和排泥管組成;
所述的A池的底部設置有承托層,A池的上部設置有A池進水管,A池內填充有沸石濾料,A池的下部設置有A池出水管,A池通過A池出水管與吸附-生物降解池連通;所述的吸附-生物降解池的底部設置有承托層,吸附-生物降解池內傾斜設置有不銹鋼柵格鋼斜板,所述的不銹鋼柵格鋼斜板的一端抵在臨近A池一側的吸附-生物降解池的頂部,不銹鋼柵格鋼斜板的另一端抵在臨近C池一側的承托層的頂部,不銹鋼柵格鋼斜板上均布有nano-Fe3O4負載活性焦顆粒,吸附-生物降解池的上部設置有B池溢流堰,吸附-生物降解池的下部設置有污泥管;所述的A池和吸附-生物降解池的底部設置有反沖洗管,所述的反沖洗管通過管路與動力裝置連通,A池與吸附-生物降解池之間的反沖洗管上設有閥門;所述的C池的上部設置有C池出水管,C池內設置有斜板填料,所述的斜板填料上設有活性焦,C池的底部設置有污泥斗,吸附-生物降解池通過污泥管與污泥斗連通,污泥斗的下部設置有排泥管,所述的排泥管通向C池的外部。
利用吸附聯合電活性生物膜的處理裝置處理煤熱解廢水中酚氨污染物的方法,按以下步驟進行:
將煤熱解廢水厭氧單元出水經A池進水管加入到A池中,經過沸石濾料的吸附后,得到一級出水;一級出水經A池出水管進入到吸附-生物降解池中,透過不銹鋼柵格鋼斜板經過nano-Fe3O4負載活性焦顆粒的吸附后,得到二級出水;二級出水經B池溢流堰進入到C池,經過斜板填料的分離后,通過C池出水管排出,完成處理煤熱解廢水中酚氨污染物;吸附-生物降解池內的污泥和從不銹鋼柵格鋼斜板上脫落的nano-Fe3O4負載活性焦顆粒經污泥管流入污泥斗內,C池內的污泥和斜板填料上脫落的失效活性焦落入污泥斗內,定期將污泥斗內的所有內容物經排泥管排向C池的外部。
本發明的有益效果:
(1)本發明利用吸附聯合電活性生物膜的處理裝置處理煤熱解廢水中酚氨污染物的方法,煤熱解廢水厭氧單元出水經沸石吸附、生物膜降解去除氨氮,經nano-Fe3O4負載活性焦顆粒吸附、生物膜降解去除酚類,實現煤熱解廢水酚氨的同步、深度脫除,大幅減輕后續膜處理、高級氧化壓力,甚至取代高級氧化工藝,進而大幅度削減廢水處理成本,提升物料、能源利用效率。
(2)本發明中斜發沸石能夠高效吸附廢水中的銨根離子與游離氨,降低氨氮對酚氧化降解過程的氧分子競爭。同時,沸石具有較強的交換性,吸附飽和后易于再生。此外,當沸石截留厭氧單元出水中的污泥并形成生物膜后,沸石吸附的氨氮可緩釋到水中,由生物膜上自養微生物硝化,異養微生物反硝化,最終脫氮。并且斜發沸石來源廣泛,成本低廉。
(3)本發明中Nano-Fe3O4負載活性焦顆粒一方面能夠選擇性吸附廢水中難以生物降解的疏水性酚類、多環芳烴類物質,另一方面可以選擇性富集電活性微生物,促進微生物異化鐵還原過程,加速難降解物質的開環、斷鏈并最終礦化。此吸附-生物降解過程氧氣消耗量較低,無須曝氣,相比于傳統的好氧生物單元能夠大幅削減能耗與成本。隨反應過程中Fe的消耗,失效的活性焦顆粒便于回收,繼續用作廉價燃料等,提高資源利用率。
Nano-Fe3O4負載活性焦顆粒的原料半焦來自于煤熱解過程,由煤料熱解釋放酚類、氨氣、焦油等產物后形成,存在大量的適合吸附酚類的活性位點,能夠選擇性吸附難生物降解的酚類和多環芳烴等。另外,負載Fe3O4后活性焦的電化學性能改善,易于富集電活性菌,能夠形成電活性微生物膜,其優良的導電性能加速生物膜上微生物的電子傳遞。活性焦顆粒還能夠吸附廢水中的顯色物質,減低出水色度。
(4)本發明中厭氧單元出水攜帶的活性較高的污泥可附著于沸石或活性焦表面形成生物膜,進一步提升污泥利用效率,斜板沉淀作用能夠有效地截留隨水流出的活性較低的污泥,降低出水濁度,取代傳統生化處理單元的二沉池,減少了基建成本。
本發明中的沸石濾料和nano-Fe3O4負載活性焦顆粒能夠截留厭氧單元出水中攜帶的活性較高的活性污泥,形成生物膜,促進酚、氨污染物的生物轉化和降解,提升污泥利用效率。
本發明可獲得一種吸附聯合電活性生物膜的處理裝置及利用該裝置處理煤熱解廢水中酚氨污染物的方法。
(發明人:徐春艷;鄭夢啟;韓洪軍;張正文)






