申請日2013.08.21
公開(公告)日2015.08.05
IPC分類號C02F1/32; C02F1/52; C02F1/48
摘要
本發明公開了一種磁助光催化污水處理裝置,包括電動機、反應器、磁線圈、旋轉裝置、高梯度磁分離器和磁絮凝劑回流泵,在反應器內部設置有旋轉裝置和紫外燈組,旋轉裝置上設置有磁鐵條組和刮泥板。污水從反應器進水管進入,磁性光催化劑在紫外光照射下,通過磁鐵條的攪拌和磁場作用與污水反應,達到處理污水的效果。本發明使污水中的污染物通過磁場、光催化、絮凝等作用得到有效地去除;磁性光催化劑還能回收,有廣闊地市場應用前景;本發明的污水處理裝置具有結構緊湊、占地面積少、運行成本低、處理效果好等特點。
權利要求書
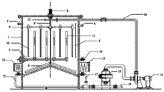
1.一種磁助光催化污水處理裝置,其特征在于包括:電動機、反應器、磁線圈、旋轉裝置、高梯度磁分離器和磁絮凝劑回流泵;
其中所述電動機設置于反應器頂端中央;
所述反應器的底部為錐形,在反應器內部設置有旋轉裝置和紫外燈組,旋轉裝置上設置有磁鐵條組和刮泥板,刮泥板位于反應器的底部;紫外燈組固定在反應器內;反應器外的電動機與旋轉裝置連接,可帶動磁鐵條組和刮泥板旋轉;在反應器的上部設置有進水管和出水管,在反應器的底部兩側設置有排泥管與反應器外部的高梯度磁分離器相連;
所述磁線圈位于反應器的底部外側;
所述磁絮凝劑回流泵連接高梯度磁分離器,并通過輸藥管連接伸入反應器頂部中央的分布器;
所述紫外燈組包括超過一根的紫外燈管;所述磁鐵條組包括超過一根的磁鐵條;所述紫外燈管和磁鐵條交錯均勻排列。
2.根據權利要求1所述的磁助光催化污水處理裝置,其特征在于:所述反應器在出水管的內側設置有擋板。
3.根據權利要求2所述的磁助光催化污水處理裝置,其特征在于:在所述出水管一側的擋板底部設置排空管。
4.根據權利要求3所述的磁助光催化污水處理裝置,其特征在于:所述高梯度磁分離器連接有排泥口。
5.根據權利要求4所述的磁助光催化污水處理裝置,其特征在于:在所述排空管、排泥管、排泥口和輸藥管設置有控制閥。
說明書
一種磁助光催化污水處理裝置
技術領域
本發明屬于水處理技術領域,具體涉及一種磁助光催化污水的處理裝置。
背景技術
近年來隨著科學技術的發展和跨學科的綜合利用,通過光催化氧化技術降解水中的污染物(尤其是高濃度和低濃度的污染物)已成為一項新型的水處理技術。它可以單獨使用也可以與其它水處理技術聯合使用,其降解過程中能耗低、易于操作、無二次污染且成本低,它是一項極具發展前景的技術。光催化反應器作為光催化反應的主體設備決定了催化劑活性的發揮和對光的利用問題也將直接影響光催化反應的效率。光催化反應器的設計和研制是光催化技術走向實用化的關鍵步驟。一個成功的光催化反應器必然體現了催化劑活性和光源利用的最優化組合。如何提高對光源的利用率及使催化劑活性得到最大發揮已成為反應器研制和開發的中心也是光催化研究的重點之一。優質飲用水及其處理設備市場廣闊,這為新技術的發展提供了巨大空間。 我國研究人員根據各自不同的設計思想研制了眾多的光催化反應器。
在污水處理凈化等工藝中,可以利用磁場對水,其他溶劑以及溶解氧的作用直接降解有機物。磁效應可以促進氧氣在水中溶解,并可能在水中產生活性氧。這些活性氧集團具有較強的氧化性能,可以氧化水中的有機物,從而降低水體中的有機物的含量。而且,轉動的磁鐵條產生的磁場能夠起一定的攪拌作用,有機物顆粒能附著在磁絮凝劑上,從而使吸附在磁粉上的污染物質發生磁聚絮凝并加速沉降。有機物所處的媒介—水溶劑在外界磁場作用下,理性性質會發生一定變化,在液相化學反應過程中,通過溶劑的靜電作用、籠效應等對化學反應過程產生影響,使有機物氧化降解的速率短時間迅速提高。尤其在光催化降解有機物的反應中,由于光催化降解反應時間較長,反應速率較慢,使得降解效率較低。磁場能夠大幅度提高光催化降解污水的反應速率,促進有機物的進一步降解。另外磁場的加入不但能夠取得良好的處理效果,并且在處理過程中減少了新的雜質及某些有害物質的引入。
公開的專利磁絮凝反應器(CN 101423272A)以及短時絮凝-高速沉降污水處理裝置(CN 102126774A),這類反應器只是單獨具有絮凝沉降功能,而不具有光催化降解有機物的功能。公開的專利光磁處理污水裝置及方法(CN 101618918A),此裝置對紫外光的利用率低,而且占地面積大,結構復雜。在公開的專利一種光磁污水處理裝置(CN 102942283A),此裝置中的磁場分布不均,容易使磁性光催化劑在污水中不能均勻分布,所以此裝置有對紫外光利用率低、絮凝效果差、催化劑的消耗量大等缺陷。
發明內容
本發明的目的在于針對現有污水光催化處理裝置的不足,提供一種結構緊湊、占地面積小、污水處理效果好、投資省、運行成本低的污水處理裝置。
為了實現上述目的,本發明采用以下技術方案:一種磁助光催化污水處理裝置,包括:電動機、反應器、磁線圈、旋轉裝置、高梯度磁分離器和磁絮凝劑回流泵;其中所述電動機設置于反應器頂端中央;所述反應器的底部為錐形,在反應器內部設置有旋轉裝置和紫外燈組,旋轉裝置上設置有磁鐵條組和刮泥板,刮泥板位于反應器的底部;紫外燈組固定在反應器內;反應器外的電動機與旋轉裝置連接,可帶動磁鐵條組和刮泥板旋轉;在反應器的上部設置有進水管和出水管,在反應器的底部兩側設置有排泥管與反應器外部的高梯度磁分離器相連;所述磁線圈位于反應器的底部外側;所述磁絮凝劑回流泵連接高梯度磁分離器,并通過輸藥管連接伸入反應器頂部中央的分布器。
所述紫外燈組包括超過一根的紫外燈管;所述磁鐵條組包括超過一根的磁鐵條;所述紫外燈管和磁鐵條交錯均勻排列。
所述反應器在出水管的內側設置有擋板。
在所述出水管一側的擋板底部設置排空管。
所述高梯度磁分離器連接有排泥口。
在所述排空管、排泥管、排泥口和輸藥管設置有控制閥。
所述電動機轉速為30~60rpm。
一方面通過旋轉磁場增加提升污水顆粒污染物在磁場中的絮凝沉降效果;另一方面,磁場的加入可以強化光催化反應效果,提升污染物去除效果,同時可大幅縮短沉降時間,降低反應裝置的水力停留時間,減少設備投資;第三,磁分離裝置可以實現磁性光催化劑的回收,降低裝置的運行成本。
本污水處理裝置在進行工作時,污水通過進水管進入反應器,同時磁性光催化劑通過分布器加入反應器,旋轉裝置上的磁鐵條在轉速30~60rpm的轉速下對加入磁性光催化劑的污水進行均勻攪拌,污水中的污染物質在反應器中的紫外燈管的照射下及磁鐵旋轉產生的均勻磁場的共同作用下,發生光催化反應和磁反應,使污水中的污染物質得以去除。同時磁性光催化劑還可以對污水中的懸浮固體物質進行絮凝反應。反應10~30min后,關閉旋轉裝置和紫外燈光,開啟磁線圈,污水中的磁性光催化劑攜裹污染物質形成污泥快速下沉,5~10min后打開排泥管上的閥門及開啟高梯度磁分離器,排出的污泥中磁性光催化劑被高梯度磁分離器回收,通過磁絮凝劑回流泵可回收用于反應過程。
本發明的有益效果是:污水中的污染物通過磁場,光催化,絮凝等作用得到有效地去除。磁性光催化劑還能回收,有廣闊地市場應用前景。該污水處理裝置具有結構緊湊、占地面積少、運行成本低、處理效果好等特點。







