申請日2013.07.26
公開(公告)日2014.01.08
IPC分類號B01D36/04
摘要
本實用新型公開了一種石材廢水凈化回用裝置,包括進水池、沉淀池、過濾槽、清水池、回用蓄水池。進水池由進水口、擋板插槽、及由可拆卸擋板分隔成的內進水池、外進水池組成;沉淀池由導流斜管、排污閥、擋板插槽、及由可拆卸擋板分隔成的內沉淀池、外沉淀池組成。可拆卸擋板上部設有溢水口,溢水口設置過濾網;過濾槽由固定擋板、鋼制承力結構、二個過濾框架、過濾介質、出水口組成。過濾框架由金屬邊框、支承網組成,過濾介質滿鋪在過濾框架上,過濾介質分別是卵石濾料、石英砂濾料。廢水凈化過濾池效率高,設置成本低、結構簡單、使用壽命長,省水、運行費用低,操作簡便、運行安全可靠。特別適用于小型石材加工企業的石材切割廢水凈化回用。
權利要求書
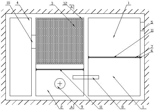
1.一種石材廢水凈化回用裝置,包括進水池、沉淀池、過濾槽、清水池、回用蓄水池,其特征是:進水池由進水口、擋板插槽、可拆卸擋板、內進水池、外進水池組成;沉淀池由導流斜管、擋板插槽、可拆卸擋板、內沉淀池、外沉淀池、集污凹槽組成;可拆卸擋板上部設有溢水口,溢水口設置過濾網;過濾槽由固定擋板、鋼制承力結構、二個過濾框架、過濾介質、溢水口組成。
2.根據權利要求1所述的石材廢水凈化回用裝置,其特征是:所述的過濾框架由金屬邊框、支承網組成,過濾介質滿鋪在過濾框架上,二個過濾框架依次由下而上放在鋼制承力結構上,所述的過濾介質分別是卵石濾料、石英砂濾料。
3.根據權利要求1所述的石材廢水凈化回用裝置,其特征是:所述的導流斜管分別設置在內進水池、外沉淀池之間。
4.根據權利要求1所述的石材廢水凈化回用裝置,其特征是:所述的擋板插槽設置在進水池池壁,由可拆卸擋板分隔成的內進水池、外進水池。
5.根據權利要求1所述的石材廢水凈化回用裝置,其特征是:所述的擋板插槽設置在沉淀池池壁,由可拆卸擋板分隔成的內沉淀池、外沉淀池;沉淀池底部呈坡狀傾斜,在外沉淀池坡底設置有集污凹槽。
6.根據權利要求1所述的石材廢水凈化回用裝置,其特征是:所述的過濾槽溢水口設置在過濾槽上部與清水池之間;過濾槽設置內沉淀池上部,清水池設置在過濾槽旁。
說明書
石材廢水凈化回用裝置
技術領域
本實用新型涉及一種廢水凈化技術領域,尤其是能有效地對石材廢水進行凈化回用的石材廢水凈化回用裝置。
背景技術
石材加工行業是國民經濟的重要組成部分,特別是在福建省個別城市已成為支柱產業。然而,石材加工行業的迅猛發展的同時,也帶來巨大的環境問題。石材在切割與磨光過程中,產生大量高濁度污水,造成了水資源的浪費和環境的污染。特別是小型石材加工企業,廢水直接排放,給周邊水體造成了嚴重污染。
在石材加工過程中,石材切割及磨光是必備工序,切割及磨光工序的設備及加工過程中所使用的添加劑均不一樣。在現有的石材加工廢水處理設備中,將所有的廢水集中統一處理,如果需要將廢水回用,需要將添加劑去除,由此需要較為復雜的工藝,流程復雜,配套設備較多,一次性投資和運行費用較高,眾多小微企業難于承受。
發明內容
為了克服現有的石材切割、磨光廢水集中統一處理的一次性投資和運行費用較高的不足, 本實用新型提供一種石材廢水凈化回用裝置,將石材切割、磨光分別處理回用,廢水凈化過濾池不僅凈化效率高,滿足回用標準,同時,回用水中已包含有生產工藝所需的添加劑,可大幅度減少加工過程中所使用的添加劑用量,減低生產成本。基本上做到廢水零排放,節約水資源,減少環境污染。而且成本低、施工方便,運行費用低、無需維修,運行安全可靠。
本實用新型解決其技術問題所采用的技術方案是:一種石材廢水凈化回用裝置,主體由磚混結構組成。包括進水池、沉淀池、過濾槽、清水池、回用蓄水池,其特征是:進水池由進水口、擋板插槽、可拆卸擋板、內進水池、外進水池組成;沉淀池由導流斜管、擋板插槽、可拆卸擋板、內沉淀池、外沉淀池、集污凹槽組成;可拆卸擋板上部設有溢水口,溢水口設置過濾網;過濾槽由固定擋板、鋼制承力結構、二個過濾框架、過濾介質、出水口組成。所述的過濾框架由金屬邊框、支承網組成,過濾介質滿鋪在過濾框架上,二個過濾框架依次由下而上放在鋼制承力結構上,所述的過濾介質分別是卵石濾料、石英砂濾料。水流由下而上經過卵石濾料、石英砂濾料逐級過濾。生產停工時,將沉淀池的水從過濾槽上部沖洗,即可將附著在卵石濾料、石英砂濾料的石粉清洗沖離,進入沉淀池。
所述的導流斜管分別設置在內進水池、外沉淀池之間,導流斜管在進水方向高,出水方向低,可減少石粉的流入。所述的擋板插槽設置在進水池池壁,由可拆卸擋板分隔成的內進水池、外進水池;在清理進水池石粉時將可拆卸擋板提起。所述的擋板插槽設置在沉淀池池壁,由可拆卸擋板分隔成的內沉淀池、外沉淀池;沉淀池底部呈坡狀傾斜,在外沉淀池坡底設置有集污凹槽。在清理沉淀池石粉時將可拆卸擋板提起。使用污水泵放入集污凹槽將沉淀池石粉污水排往外進水池。所述的過濾槽溢水口設置在過濾槽上部與清水池之間。在進水池與外沉淀池之間池壁的高度高于其它池壁,以防止進水池的水溢進沉淀池。在進水池、沉淀池、過濾槽、清水池上部分別設置蓋板,防止沙塵進入及發生安全事故。過濾槽設置內沉淀池上部,清水池設置在過濾槽旁,清水池內設置潛水泵及浮球閥,當清水池內水位達到一定的高度,潛水泵自動開啟,將清水泵往回用蓄水池。回用蓄水池設置在高于用水設備處或廠房屋頂,設置引水管及閥門直接進入用水設備;赜眯钏貎仍O置自動補水閥,因為蒸發及其他原因導致回用蓄水池內的水平面過低,自動額外補給新水,保證生產的持續進行。石材切割與磨光廢水分別設置石材廢水凈化回用裝置。
石材廢水凈化回用流程:石材切割(或磨光)用水→機臺廢水溝收集→進水口→外進水池沉淀→溢水口過濾網→內進水池沉淀→導流斜管→外沉淀池沉淀→溢水口過濾網→卵石濾料過濾→石英砂濾料過濾→過濾槽水面→出水口→溢出進入清水池→抽水泵→回用蓄水池→石材切割(或磨光)用水。
本實用新型的有益效果是,石材廢水凈化回用裝置與目前國內現有的同類技術比較有如下特點:
1、將石材切割、磨光分別處理回用,廢水凈化過濾池不僅凈化效率高,滿足回用標準。
2、可大幅度減少加工過程中所使用的添加劑用量,減低生產成本。
3、設置成本低、結構簡單、使用壽命長,操作簡便、運行安全可靠。
4、省水、省電、運行費用低,基本上做到廢水零排放,節約水資源減少環境污染。
5、運營成本低,占地少,特別適用于小型石材企業的廢水處理。







