申請日2013.08.28
公開(公告)日2014.03.26
IPC分類號C02F9/14
摘要
本實用新型公開了一種用于處理猾皮加工行業生產廢水的系統,包括預曝氣調節池,通過污水管道與預曝氣調節池連接的隔油沉淀池,隔油沉淀池與1#中間水池合建,1#中間水池通過管道連接UASB反應器,UASB反應器通過管道連接曝氣沉淀池,曝氣沉淀池通過管道連接生物接觸氧化池,生物接觸氧化池通過管道連接二沉池,二沉池通過管道連接穿孔旋流斜管沉淀池,穿孔旋流斜管沉淀池通過管道連接2#中間水池,2#中間水池通過管道連接多介質過濾器,多介質過濾器通過管道連接活性炭過濾器,活性炭過濾器通過管道連接清水池。本實用新型經濟適用、專門用于猾皮加工行業生產廢水處理的系統,填補了猾皮加工行業生產廢水處理的技術空白,提高了企業的經濟效益,降低了運行成本,同時減少了對環境的污染。
權利要求書
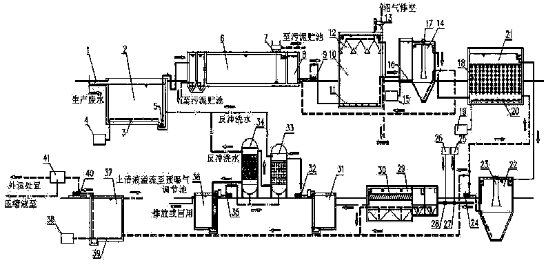
1.一種用于處理猾皮加工行業生產廢水的系統,其特征在于:包括預曝氣調節池(2),以及通過污水管道與預曝氣調節池(2)連接的隔油沉淀池(6),隔油沉淀池(6)與1#中間水池(8)合建,1#中間水池(8)通過管道連接UASB反應器(10),UASB反應器(10)通過管道連接曝氣沉淀池(14),曝氣沉淀池(14)通過管道連接生物接觸氧化池(21),生物接觸氧化池(21)通過管道連接二沉池(22),二沉池22通過管道連接穿孔旋流斜管沉淀池(29),穿孔旋流斜管沉淀池(29)通過管道連接2#中間水池(31),2#中間水池(31)通過管道連接多介質過濾器(33),多介質過濾器(33)通過管道連接活性炭過濾器(34),活性炭過濾器(34)通過管道連接清水池(36)。
2.根據權利要求1所述的一種用于處理猾皮加工行業生產廢水的系統,其特征在于:所述的預曝氣調節池(2)進水口處設置有格柵(1),池底設置有與第一鼓風機(4)通過空氣管道連接的預曝氣裝置(3)以及第一污水提升泵(5);所述的隔油沉淀池(6)設置有行車式撇油泵吸泥機(7),污泥排入污泥貯池(37)。
3.根據權利要求1所述的一種用于處理猾皮加工行業生產廢水的系統,其特征在于:所述的1#中間水池(8)連接有第二污水提升泵(9);所述的UASB反應器(10)的底部設置有與從1#中間水池(8)來向的污水管道相連接的布水裝置(11),UASB反應器(10)的上部還設置有氣-固-液三相分離器(12),以及位于UASB反應器(10)頂部的水封罐(13),污泥排入污泥貯池(37)。
4.根據權利要求1所述的一種用于處理猾皮加工行業生產廢水的系統,其特征在于:所述的曝氣沉淀池(14)混凝區池底設置有與第二鼓風機(15)通過空氣管道連接的布氣裝置(16),沉淀區設置有第一導流筒(17)。
5.根據權利要求1所述的一種用于處理猾皮加工行業生產廢水的系統,其特征在于:所述的生物接觸氧化池(21)設置有彈性立體填料(18),池底設置有與第三鼓風機(19)通過空氣管道連接的曝氣裝置(20)。
6.根據權利要求1所述的一種用于處理猾皮加工行業生產廢水的系統,其特征在于:所述的二沉池(22)池內設置有第二導流筒(23),且設置有第一污泥泵(24),污泥排入污泥貯池(37)。
7.根據權利要求1所述的一種用于處理猾皮加工行業生產廢水的系統,其特征在于:所述的穿孔旋流斜管沉淀池(29)與二沉池(22)之間的管道上設置有第一管道混合器(27)和第二管道混合器(28),第一管道混合器(27)和第二管道混合器(28)分別與PAC加藥裝置(25)和PAM加藥裝置(26)連接,穿孔旋流斜管沉淀池(29)設置有斜管(30),污泥排入污泥貯池(37)。
8.根據權利要求1所述的一種用于處理猾皮加工行業生產廢水的系統,其特征在于:所述的2#中間水池(31)設置有第三污水提升泵(32),后面依次連接多介質過濾器(33)和活性炭過濾器(34)。
9.根據權利要求1所述的一種用于處理猾皮加工行業生產廢水的系統,其特征在于:所述的清水池(36)設置有第四污水提升泵(35),用于反沖多介質過濾器(33)和活性炭過濾器(34),反沖洗水排放至預曝氣調節池(2)。
10.根據權利要求2、3、6、7任意項所述的一種用于處理猾皮加工行業生產廢水的系統,其特征在于:所述的污泥貯池(3)7池底設置有與第四鼓風機(38)通過空氣管道連接的布氣裝置(39),后面連接第二污泥泵(40),通過帶式污泥濃縮脫水一體機(41)脫水壓縮成泥餅外運處理,壓濾液排放至預曝氣調節池(2),重新進入本廢水處理系統。
說明書
一種用于處理猾皮加工行業生產廢水的系統
技術領域
本實用新型涉及廢水處理領域,具體為一種專門用于處理猾皮加工行業生產廢水的系統。
技術背景
猾皮是山羊羊羔生下后1~3天內宰剝加工制成的毛皮,稱猾子皮。因其色青故叫青猾皮,以其毛呈卷曲狀,柔軟輕薄,有較好的保暖性,制作裘服為上等原料。
猾皮在加工生產過程中會產生大量廢水,主要來源于洗皮、鞣制和染色工段,含有甲醛、蛋白質、油脂、鹽類、硫化物以及毛類、泥砂等物質,具有成分復雜,有機濃度高、懸浮物高、硫化物高等特點。
目前已經有不少關于皮革廢水方面的專利,比如95111298.8、200810117794.4、201010293157.X、201110079680.7、201210595501.X、201310144756.9等。但是這些專利不同程度地存在投資較多、工藝復雜、處理效果差等問題,而且也沒有一種專門針對于猾皮加工行業的廢水處理系統。
發明內容
為了克服上述現有技術中的不足,本實用新型提供了一種經濟適用、專門用于處理猾皮加工行業生產廢水的裝置及其處理工藝,將厭氧處理系統、好氧處理系統和深度處理系統相結合,降低廢水處理系統的運行成本,減少廢水對環境的污染。
本實用新型的目的是這樣實現的:
一種用于處理猾皮加工行業生產廢水的系統,其特征在于:包括預曝氣調節池2,以及通過污水管道與預曝氣調節池連接的隔油沉淀池6,隔油沉淀池6與1#中間水池8合建,1#中間水池8通過管道連接UASB反應器10,UASB反應器10通過管道連接曝氣沉淀池14,曝氣沉淀池14通過管道連接生物接觸氧化池21,生物接觸氧化池21通過管道連接二沉池22,二沉池22通過管道連接穿孔旋流斜管沉淀池29,穿孔旋流斜管沉淀池29通過管道連接2#中間水池31,2#中間水池31通過管道連接多介質過濾器33,多介質過濾器33通過管道連接活性炭過濾器34,活性炭過濾器34通過管道連接清水池36。
所述的預曝氣調節池2進水口處設置有格柵1,池底設置有與第一鼓風機4通過空氣管道連接的預曝氣裝置3以及第一污水提升泵5;
所述的隔油沉淀池6設置有行車式撇油泵吸泥機7,污泥排入污泥貯池37。
所述的1#中間水池8連接有第二污水提升泵9。
所述的UASB反應器10的底部設置有與從1#中間水池8來向的污水管道相連接的布水裝置11,UASB反應器10的上部還設置有氣-固-液三相分離器12,以及位于UASB反應器10頂部的水封罐13,污泥排入污泥貯池37。
所述的曝氣沉淀池14混凝區池底設置有與第二鼓風機15通過空氣管道連接的布氣裝置16,沉淀區設置有第一導流筒17。
所述的生物接觸氧化池21設置有彈性立體填料18,池底設置有與第三鼓風機19通過空氣管道連接的曝氣裝置20。
所述的二沉池22池內設置有第二導流筒23,且設置有第一污泥泵24,污泥排入污泥貯池37。
所述的穿孔旋流斜管沉淀池29與二沉池22之間的管道上設置有第一管道混合器27和第二管道混合器28,第一管道混合器27和第二管道混合器28分別與PAC加藥裝置25和PAM加藥裝置26連接,穿孔旋流斜管沉淀池29設置有斜管30,污泥排入污泥貯池37。
所述的2#中間水池31設置有第三污水提升泵32,后面依次連接多介質過濾器33和活性炭過濾器34。
所述的清水池36設置有第四污水提升泵35,用于反沖多介質過濾器33和活性炭過濾器34,反沖洗水排放至預曝氣調節池2。
所述的污泥貯池37池底設置有與第四鼓風機38通過空氣管道連接的布氣裝置39,后面連接第二污泥泵40,通過帶式污泥濃縮脫水一體機41脫水壓縮成泥餅外運處理,壓濾液排放至預曝氣調節池2,重新進入本廢水處理系統。
積極有益效果:本實用新型為一種經濟適用、專門用于猾皮加工行業生產廢水處理的系統,填補了猾皮加工行業生產廢水處理的技術空白,提高了企業的經濟效益,降低了運行成本,同時減少了對環境的污染。







