申請日2014.11.05
公開(公告)日2015.03.18
IPC分類號C02F1/04
摘要
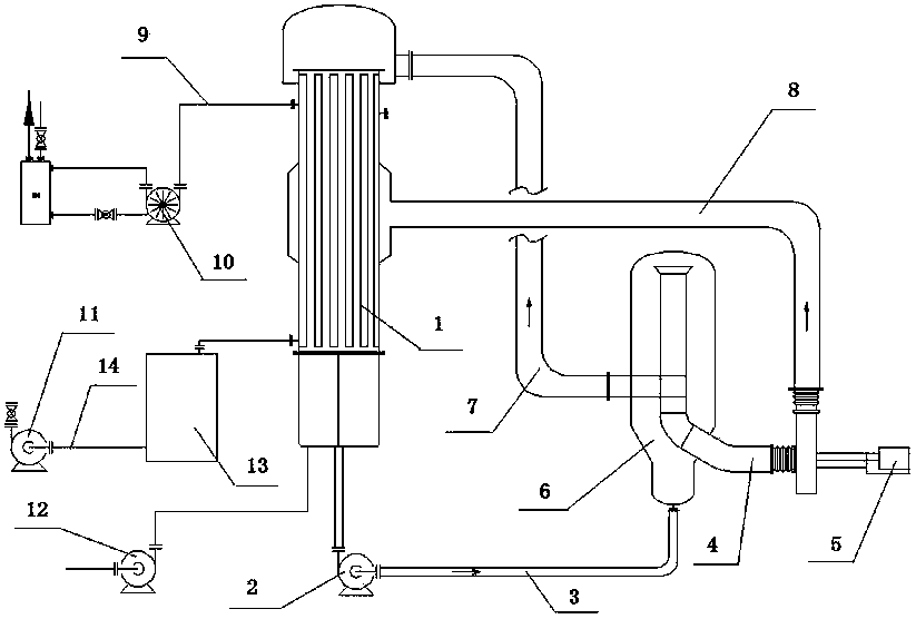
一種基于機械再壓縮技術的污水處理裝置,該裝置包括分離器、蒸發換熱器、循環泵、進料泵、真空泵、壓縮機和冷凝水泵;所述的蒸發換熱器底部連接有與蒸發換熱器管程連接的進料管路,蒸發換熱器和分離器底部之間設有液體循環管路,壓縮機與供氣管路連接,蒸發換熱器的上部與分離器之前連接有回液管路;蒸發換熱器的殼程上連接有真空管路;在蒸發換熱器的殼程上還連接設有冷凝管路。本實用新型裝置結構設計合理,可操作性強,可以有效地實現污水處理;可以根據蒸發量來自動調節電機頻率和進料量,做到了真正的無人職守的控制狀態,實現了自動控制,可以通過動態平衡、頻率自動調節等技術實現節能減排的目標。
權利要求書
1.一種基于機械再壓縮技術的污水處理裝置,其特征在于:
該裝置包括分離器、蒸發換熱器、循環泵、進料泵、真空泵、壓縮機和冷凝水泵;所述的蒸發換熱器底部連接有與蒸發換熱器管程連接的進料管路,進料泵設在進料管路上;蒸發換熱器和分離器底部之間設有液體循環管路,循環泵設在液體循環管路上;壓縮機與供氣管路連接,供氣管路的另一端連接在蒸發換熱器的中部上,蒸發換熱器的上部與分離器之前連接有回液管路,蒸發換熱器管程、分離器和循環泵形成回路;分離器內上部設有通向壓縮機的蒸汽回收管路;供氣管路上設有蒸汽調節閥;
蒸發換熱器的殼程上連接有真空管路,真空泵設在真空管路上;在蒸發換熱器的殼程上還連接設有冷凝管路,冷凝水泵設在冷凝管路上。
2.根據權利要求1所述的一種基于機械再壓縮技術的污水處理裝置,其特征在于:在冷凝管路上還設有冷凝水槽。
3.根據權利要求1所述的一種基于機械再壓縮技術的污水處理裝置,其特征在于:在供氣管路上設有負壓檢測裝置;所述的負壓檢測機構安裝在管道彎頭處,由接近開關、擋片和固定裝置組成;所述接近開關面向蒸汽方向安裝,擋片由固定裝置固定安裝在接近開關的側部。
4.根據權利要求1-3任何一項所述的一種基于機械再壓縮技術的污水處理裝置,其特征在于:該裝置還設有控制系統,所述的控制系統包括PLC控制站、PLC控制站與通過控制線與觸摸屏和I/O擴展模塊連接,I/O擴展模塊通過信號線分別與蒸汽調節閥、循環泵、壓縮機、冷凝水泵、進料泵的進料調節閥、真空泵的真空調節閥連接。
說明書
基于機械再壓縮技術的污水處理裝置
技術領域
本實用新型涉及一種污水處理裝置,特別是一種基于機械再壓縮技術的污水處理裝置。
背景技術
目前機械蒸汽再壓縮污水處理控制系統主要針對化工廠排放的工業廢水進行處理。目前常見的處理裝置與都需要消耗巨大的能量,不利于能量節約。目前發展高效率,低污染的蒸發處理技術具有很大的必要性。
機械蒸汽再壓縮是將單效蒸發的蒸汽經過壓縮機再次壓縮,溫度、壓力值提高,熱焓增加,然后進入換熱器冷凝,以充分利用蒸汽的潛熱。國內這類技術屬于新興的朝陽產業,很多廠礦企業因為能源、排放等要求必須上面節能和使用效果都很好的MVR系統,可以說前景十分廣闊。
目前蒸發系統的控制主要靠經驗手動控制。
主要缺點是:1、對于操作人員要求難度高,須掌握必要的經驗技術;
2、容易因為操作失誤,導致系統故障;
3、無法自動調節電機轉速,導致能源浪費;
4、不能實現無人值守運行。
發明內容
本實用新型所要解決的技術問題是針對現有技術的不足,提供一種結構設計更為合理、運行穩定高效、能耗低的一種基于機械再壓縮技術的污水處理裝置。
本實用新型所要解決的技術問題是通過以下的技術方案來實現的。本實用新型是一種基于機械再壓縮技術的污水處理裝置,其特點是:
該裝置包括分離器、蒸發換熱器、循環泵、進料泵、真空泵、壓縮機和冷凝水泵;所述的蒸發換熱器底部連接有與蒸發換熱器管程連接的進料管路,進料泵設在進料管路上;蒸發換熱器和分離器底部之間設有液體循環管路,循環泵設在液體循環管路上;壓縮機與供氣管路連接,供氣管路的另一端連接在蒸發換熱器的中部上,蒸發換熱器的上部與分離器之前連接有回液管路,蒸發換熱器管程、分離器和循環泵形成回路;分離器內上部設有通向壓縮機的蒸汽回收管路;供氣管路上設有蒸汽調節閥;
蒸發換熱器的殼程上連接有真空管路,真空泵設在真空管路上;在蒸發換熱器的殼程上還連接設有冷凝管路,冷凝水泵設在冷凝管路上。
本實用新型所要解決的技術問題還可以通過以下的技術方案來進一步實現的。以上所述的一種基于機械再壓縮技術的污水處理裝置,其特點是:在冷凝管路上還設有冷凝水槽。
本實用新型所要解決的技術問題還可以通過以下的技術方案來進一步實現的。以上所述的一種基于機械再壓縮技術的污水處理裝置,其特點是:在供氣管路上設有負壓檢測裝置;所述的負壓檢測機構安裝在管道彎頭處,由接近開關、擋片和固定裝置組成;所述接近開關面向蒸汽方向安裝,擋片由固定裝置固定安裝在接近開關的側部。
本實用新型所要解決的技術問題還可以通過以下的技術方案來進一步實現的。以上所述的一種基于機械再壓縮技術的污水處理裝置,其特點是:該裝置還設有控制系統,所述的控制系統包括PLC控制站、PLC控制站與通過控制線與觸摸屏和I/O擴展模塊連接,I/O擴展模塊通過信號線分別與蒸汽調節閥、循環泵、壓縮機、冷凝水泵、進料泵的進料調節閥、真空泵的真空調節閥連接。
本實用新型裝置可以利用PID控制方法;系統采用蒸發換熱器的真空度反饋參數為輸入參數,用以表征蒸發換熱器的當前狀態;以真空度調節閥為控制執行器,根據系統的運行要求選擇控制所需真空度。該裝置通過控制蒸發量和進料量的平衡來實現平穩運行,使得蒸發罐內的液位保持相對恒定;通過測量壓縮機的進氣溫度和目標供氣溫度計算出需要蒸汽壓縮機的頻率值。所述的PLC控制站可以使用模塊化設計,主要包括以下功能塊:系統初始化模塊,信號采集、處理模塊,系統控制模塊,信息接收、發送模塊,以及報警信息處理模塊。所述的PLC控制站可以采用網絡接口與上位機進行通訊,并將機組的關鍵信息發送至管理員計算機;系統I/O擴展模塊包含兩個AI輸入、一個DI輸入、一個DO輸出和一個AO輸出。
本實用新型裝置中,控制系統的控制核心就是蒸發換熱器內沸騰。蒸汽調節閥打開向蒸發換熱器內通蒸汽加熱至設定溫度,開啟真空泵并通過調節真空調節閥使得真空度恒定在設定值左右。此時蒸發換熱器內液體開始沸騰,沸騰產生的蒸汽一部分進入分離器冷卻產生冷凝水,其他經壓縮機壓縮,壓力、溫度升高,進入蒸發換熱器中加熱液體使其保持沸騰。這樣蒸發換熱器和分離器就構成了一個動態平衡的循環過程。控制系統保證蒸發換熱器的溫度、真空度、液位相對恒定。壓縮機的頻率則根據蒸發換熱器過來的蒸汽溫度來控制,保證壓縮機出口的溫度恒定。系統能夠穩定工作,同時電能消耗大幅減少。
本實用新型使用的控制軟件可以采用模塊化沒計,采取開閉環相結合和模糊PID等控制策略。為便于試驗調試,電控單元還留有通訊口與外部計算機進行通訊,可以通過計算機設置控制命令或將數據傳送給計算機,以便于數據存儲、處理和分析。
本實用新型選用可編程控制模塊PLC控制,它集成度高、質量可靠、技術先進、擴展方便,提供工業總線和網絡通訊接口,可方便的與計算機、觸摸屏以及其它工控智能設備相連接,通過觸摸屏完成對各個溫度、壓力、流量等信號的測量和對調節閥、電機等生產設備的控制任務。PLC通過工業現場總線與主控制站聯系,完成整個控制過程。
本實用新型采用蒸發換熱器真空度自動調節技術,利用PID控制技術,通過現場試驗得出工程數據,得出相關公式及控制算法。系統采用蒸發罐的真空度反饋參數為輸入參數,用以表征蒸發罐的當前狀態;以真空度調節閥為控制執行器,根據系統的運行要求選擇控制所需真空度。因為真空泵真空的速度遠慢于較于空氣進入蒸發罐的速度,所以PID參數在不同過程不同誤差值的時候采用不同參數。保證蒸發罐可以獲得相對恒定的真空度,整個系統平穩運行。
本實用新型裝置采用動態平衡控制技術,系統運行平穩必須控制蒸發量和進料量的平衡,使得蒸發罐內的液位保持相對恒定。這個過程中還需要考慮進料不能一次投放太多,導致蒸發罐內溫度下降至沸點以下。通過測量蒸汽壓縮機的進氣溫度和目標供氣溫度計算出需要蒸汽壓縮機的頻率值。該過程中維持蒸發循環中的能量平衡,保證蒸發效果的前提下消耗最少的電能。控制過程中蒸發器內物料、能量處于相對平衡的狀態,實現處理過程的穩定性。
本實用新型蒸汽壓縮機低功耗狀態自動復位技術。通過檢測供氣管路的負壓檢測裝置,來判斷系統是否處于低功耗狀態(壓縮機實際在喘振),如果處于低功耗狀態,表示因為蒸發器內蒸汽不足系統無法進行正常處理。通過控制真空度調節閥,將真空度提高10%(該值可調)。過段時間后判斷,如果依然沒有恢復正常壓縮狀態,則向蒸發器內通蒸汽加熱液體,使得系統恢復正常壓縮狀態。蒸汽經過壓縮機后會按圖示方向運動,此時擋片會向左側運動。如果壓縮機因為沒有足夠蒸汽產生喘振,氣流會向反方向運動,擋片在氣流作用下靠近接近開關。該裝置向系統發出信號,顯示系統處于低功耗狀態。
與現有技術相比,本實用新型的優點及技術效果如下:
(1)本實用新型裝置結構設計合理,可操作性強,可以有效地實現污水處理;
(2)本實用新型裝置可以根據蒸發量來自動調節電機頻率和進料量,做到了真正的無人職守的控制狀態,實現了自動控制。
(3)本實用新型裝置可以通過動態平衡、頻率自動調節等技術實現節能減排的目標,裝置系統安全、穩定控制。







