我國是一個水資源短缺的國家,目前全國600多個城市中有400多個城市缺水〔1〕。城市污水資源化作為開源的重要形式,已成為解決水危機的重要措施之一〔2〕。沈陽北部污水處理廠是東北地區最大的污水處理廠,日處理能力為40萬t,其中20萬t/d采用A/O脫氮的處理工藝。對該廠處理出水進行深度處理,使之得以回用,對解決城市水資源短缺具有重要意義。對此,本研究采用污泥回流高效絮凝+雙層濾料過濾的工藝對沈陽北部污水處理廠的二級生化處理出水進行深度處理,以達到回用于康平坑口電廠冷卻用水的目的。通過中試動態連續流試驗對該工藝的可行性進行了研究。
1 試驗系統及試驗方法
1.1 試驗水質
試驗原水取自沈陽市北部污水處理廠二級生化處理工藝出水,其水質:CODCr 30~70 mg/L,濁度 4~14 NTU,色度 38~91度,TP 2.8~5.6 mg/L.
1.2 中試裝置
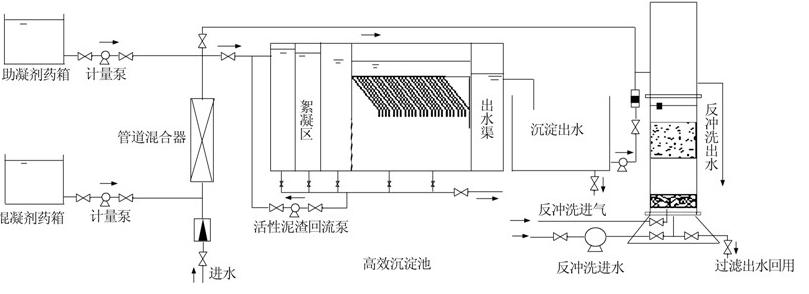
中試試驗系統流程如圖 1所示。
圖 1 中試試驗系統流程
該工藝主要處理單元包括高效沉淀池、回流系統和過濾裝置。其中,高效沉淀池沉淀區中加裝了小間距豎向斜向組合板構件,其網格式絮凝反應區分為14格;沉淀區斜板間距25 mm,斜板長800 mm,水平傾角60度,在斜板下垂直延長250 mm.過濾裝置濾柱內徑為250 mm,高為4 500 mm;濾層采用雙層濾料,上層為無煙煤,粒徑1.0~2.0 mm,高400 mm,下層為石英砂,粒徑0.5~1.2 mm,高500 mm;承托層厚400 mm,從下到上由粗到細鋪不同粒徑的卵石。
1.3 中試系統運行工藝參數選擇
進水流量為1 m3/h;混凝劑采用聚合氯化鋁(PAC),投加量為30~40 mg/L;助凝劑采用陽離子PAM RT 2300,投加量為0.45 mg/L;絮凝時間為 13 min;沉淀池表面負荷為12 m3/(m2·h);濾柱濾速為10 m/h.當原水濁度變化時,活性污泥回流量和混凝劑投加量隨之變化。
1.4 分析項目與方法
CODCr、NH3-N、TP、色度、濁度和污泥平均濃度等的分析參照《水和廢水監測分析方法》(第4版)。
2 試驗結果與分析
2.1 中試系統對色度和濁度的去除效果
中試系統對色度和濁度的去除效果見圖 2. 由圖 2可知,當原水色度為38~91度,濁度為4~13.4 NTU時,沉淀出水色度平均為27.9度,濁度平均為1.4 NTU;過濾出水色度平均為19.7度,濁度平均為0.6 NTU.經該工藝處理后,總色度去除率為57.1%~76.6%,平均為65.6%;總濁度去除率為84.8%~97.5%,平均為91.1%.試驗結果表明,高效沉淀裝置對色度、濁度的平均去除率分別為50%、60%,分別占到工藝對色度和濁度去除率的76%、66%,說明污泥回流高效絮凝是該工藝去除色度和濁度的主要原因。
圖 2 進出水色度和濁度的變化
研究表明,高效沉淀池中的活性污泥含有大量金屬氫氧化物及懸浮膠體顆粒物〔3〕,通過污泥回流接觸絮凝的方法可有效增加水中顆粒物濃度,增加混凝劑水解產物的絮凝核心,提高微粒碰撞幾率,從而提高顆粒間的凝聚機會,促進顆粒的凝聚成長。同時,活性污泥中細菌的細胞代謝和自溶會在體外分泌一種高分子胞外聚合物(EPS)〔4〕,在適宜條件下EPS可與懸浮顆粒通過離子鍵、氫鍵相結合,迅速形成網狀結構而沉降〔5〕,其對于低溫低濁水具有良好的絮凝效果。投加適當的混凝劑和助凝劑,采用翼片微渦旋絮凝網格混合,并配合高濃度污泥回流能有效起到處理低溫低濁水的目的。通過增強機械攪拌,可促進膠體顆粒間產生的同向絮凝,進一步改善混凝效果〔6〕,使色度和濁度等得到去除。運行結果表明,污泥回流高效絮凝+過濾工藝對色度和濁度有穩定的去除效果,工藝最終出水色度和濁度遠小于《城市污水再生利用 工業用水水質》(GB/T 19923-2005)中的規定,符合再生水回用水質標準。
2.2 中試系統對CODCr的去除效果
中試系統對CODCr的去除效果見圖 3。
圖 3 進出水CODCr的變化
從圖 3可以看出,當原水CODCr為30~70 mg/L時,沉淀出水CODCr平均為 31.1 mg/L,過濾出水CODCr平均為 25.3 mg/L,總CODCr去除率平均為43%,其中高效沉淀裝置對CODCr的去除率平均為30%,占工藝總去除率的70%,說明污泥回流高效絮凝對CODCr的去除起主要作用。
污泥回流高效絮凝系統是將高效沉淀池中具有黏附活性的高密度沉淀污泥回流,與加混凝劑的原水混合,通過混凝劑壓縮雙電層、吸附架橋、網捕卷掃作用使膠粒脫穩并凝聚形成絮凝體〔7〕,其不但對色度、濁度具有良好的去除效果,同時有助于去除水中懸浮有機物,使出水CODCr降低。該工藝對CODCr的去除效果穩定,出水CODCr達到《城市污水再生利用 工業用水水質》(GB/T 19923-2005)的要求。
2.3 中試系統對總磷的去除效果
中試系統對總磷的去除效果如圖 4所示。從圖 4可以看出,當原水總磷為2.8~5.6 mg/L時,沉淀出水總磷平均為1.0 mg/L,過濾出水總磷平均為0.6 mg/L,總的總磷去除率為75.6%~94.6%,平均為86.3%.試驗結果表明,該工藝對總磷的去除比較理想;炷齽┤芙夂蟮慕饘訇栯x子可與污水中的磷反應,生成難溶解的磷酸鹽類沉淀物〔8〕,因此混凝過程去除磷的效果顯著;炷^程在去除非溶解性固體的同時,也可去除污水中的某些溶解性物質(如砷、汞等).此外,高效沉淀池出水通過無煙煤和石英砂雙層濾料的過濾作用,其中未沉淀完全的膠體物質和懸浮物質得到進一步去除,進一步降低了出水磷含量,提高了系統整體處理效果。
圖 4 進出水總磷的變化
2.4 中試系統對氨氮的去除效果
中試系統對氨氮的去除效果如圖 5所示。
圖 5 進出水氨氮的變化
由圖 5可以看出,原水氨氮在開始階段比較低(<1 mg/L),此時出水氨氮<1 mg/L.當原水氨氮為5~15 mg/L時,過濾出水氨氮在12 mg/L以下。系統總氨氮去除率平均僅為19.7%,說明該工藝對氨氮的去除并不理想。這是因為原水中的氨氮主要以離子態溶解于水中,用化學法去除氨氮沒有太大的作用,因此,混凝沉淀+過濾工藝很難將其去除〔9〕;但由于網捕卷掃作用也能夠去除一小部分含氮有機物,使工藝對氮也有一定的去除效果。同時,研究發現高效沉淀池出水經過濾以后,其氨氮都有微小的上升趨勢。經分析可能是由于濾柱中存在缺氧區,在反硝化過程中發生同化反硝化,使一部分硝態氮轉化為氨態氮。
3 中試試驗產水成本分析
通過設備的初期投資、長期運行費以及維護費計算產水成本。
初期投資包括計量泵、活性泥渣回流泵、濾柱反沖洗泵、管道混合器等設備,以及高效絮凝沉淀池、濾柱等中試裝置。使用壽命按4 a計,則每噸產水折合設備費0.28元,設備折舊費0.11元。
長期運行費及維護費包括藥劑費、人工費、電費等。其中高效絮凝工藝中試試驗每噸產水消耗電能0.5 kW·h,電費單價按0.5元/(kW·h)計,則每噸產水電費為0.25元;每噸產水消耗聚合氯化鋁(按40 mg/L計)與聚丙烯酰胺(按0.4 mg/L計)費用為0.35元;每噸產水人工費按0.18元計。由此可見,采用污泥回流高效絮凝+過濾工藝對污水處理廠二級生化處理出水進行深度處理使之回用的產水成本為1.17元/ m3,具有處理效果好、產水成本低的優勢。具體參見http://m.dongaorq.cn更多相關技術文檔。
4 結論
城市污水處理廠二級生化處理工藝出水經過中試條件下的污泥回流高效絮凝+過濾聯合工藝處理后,出水色度為19.7度,濁度為0.6 NTU,CODCr為25.3 mg/L,總磷為0.6 mg/L,出水色度、濁度、CODCr、總磷能夠滿足《城市污水再生利用 工業用水水質》(GB/T 19923-2005)的要求。但系統對氨氮去除效果不甚理想,建議另行增加氨氮處理工藝。
采用污泥回流高效絮凝+過濾工藝對污水處理廠二級生化處理出水進行深度處理回用的產水成本為1.17元/m3,具有一定的經濟可行性。








